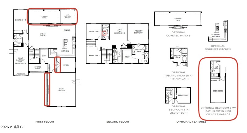
One of our most popular floor plans the Mazatzal gives you all the space you could want and need in a 2-story home including 5 bedrooms, 3 bathrooms, a loft, study and huge backyard!!! As you enter the home you will notice the welcoming wide hallway that takes you to the center of the home the kitchen where you will find Espresso shaker cabinets, White quartz countertops, large pantry and separate dining area. You will also find a study with double doors and 2 bedrooms with a hall bathroom on the first floor. Upstairs you will find the loft, secondary bedrooms, hall bathroom, laundry room, primary bedroom and bathroom. Step out onto your extended covered patio and large backyard to really create your own desert oasis!
From I-10 going West, go South on Watson Rd. past Lower Buckeye Rd, go East on W. Kingman St, go North on 234th Lane, right on Winslow Ave, follow all the way to the home on the right side of the street.
Dwelling Type: Residential
Subdivision: BENTRIDGE PHASE 2
Year Built: 2025, County: N/A
From I-10 going West, go South on Watson Rd. past Lower Buckeye Rd, go East on W. Kingman St, go North on 234th Lane, right on Winslow Ave, follow all the way to the home on the right side of the street.
Listing is courtesy of Risewell Homes
Sign in to your account to continue