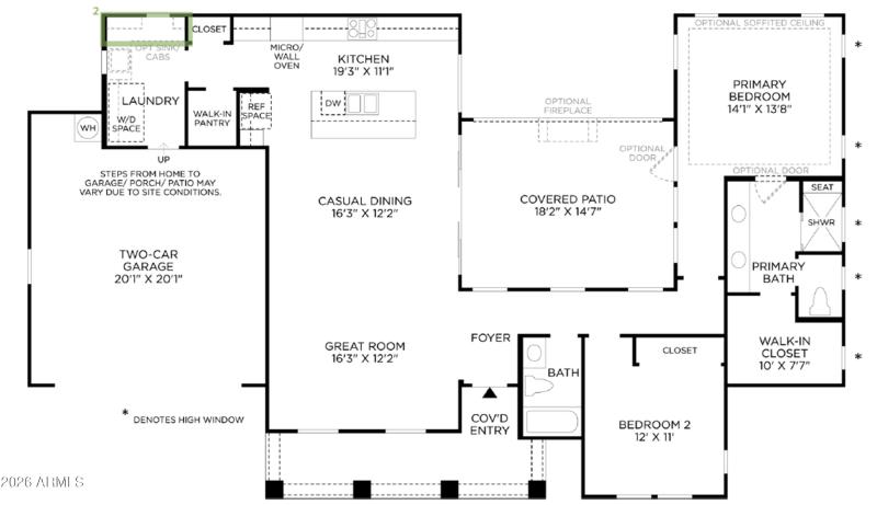
This beautiful Spanish-inspired Smithfield floor plan offers exclusive living in every detail. The expansive great room flows into kitchen that exudes designer elegance with stainless Whirlpool appliances. Enjoy seamless indoor/outdoor living with an expansive patio and private backyard. Resort-Style Living! Discover a beautifully landscaped, gated master-planned community offering an active, resort-inspired lifestyle. Enjoy world-class amenities including a championship golf course, vibrant clubhouse activities, sparkling pools, sport courts, a full-service spa, and on-site dining featuring exceptional restaurants and bars. There's still time to personalize your home with your choice of Design Studio upgrades!
Exit loop 303 at Cactus, go west passed Cotton to community entrance on the south side of the road. Guard at gate will provide direction to the Sales Center.
Dwelling Type: Residential
Subdivision: TOLL AT PRASADA UNIT Q PHASE 3 SF SOUTH
Year Built: 2026, County: N/A
Exit loop 303 at Cactus, go west passed Cotton to community entrance on the south side of the road. Guard at gate will provide direction to the Sales Center.
Listing is courtesy of Toll Brothers Real Estate
Sign in to your account to continue