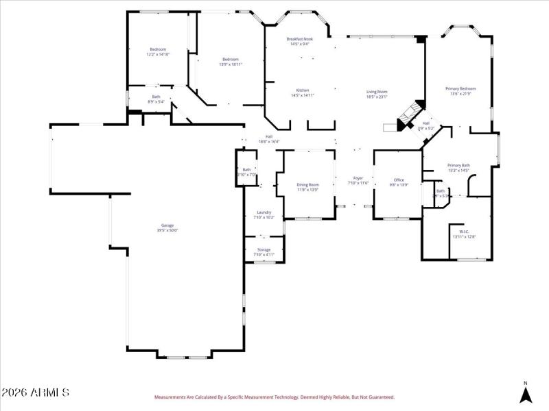
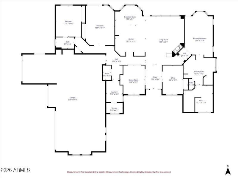
Beautiful Single Story Custom Home on 1.25 Acres w/ Spectacular & Panoramic Views of the Superstition Mountains! 2905 Sqft. w/ 4 Bedrooms, 3 Bathrooms, & a Beautifully designed Great Room Floor Plan. A Dream Garage...3 oversized Bays & in Addition a 35' RV Garage w/ 30 Amp Power Hook-up! The home has a Large Walk-up View Deck which overlooks the Pool, Sunrises, Sunsets, City Lights & the Mountain Views! Spacious Kitchen w/ LOTS of Cabinets, wrap around Kitchen Island, Expansive 42'' Oak Cabinets, Double Ovens, Dbl Sinks, Bay Window at Eat-in Kitchen Area - Entertainers Delight! 2 Lennox Heat Pumps & Air Handlers, 2026 New Roof, Artesian Well w/ New Pump in 2025. Guest Wing has 2 Bedrooms & 1 Full Bath. Large Owners Suite & Huge Walk-in Closet, Double Sinks, Separate Toilet Rm .Welcome Home
Go North on Kings Ranch Rd., Right on Baseline, Left on Mohican, Left on Valley View (which turns into Whitetail) Right on Cloudview & 10558 will be on your Left Side...Welcome Home!
Dwelling Type: Residential
Subdivision: No HOA - Acreage - Mountain Views S33 T1N R9E
Year Built: 2003, County: N/A
Go North on Kings Ranch Rd., Right on Baseline, Left on Mohican, Left on Valley View (which turns into Whitetail) Right on Cloudview & 10558 will be on your Left Side...Welcome Home!
Listing is courtesy of Good Oak Real Estate
Sign in to your account to continue