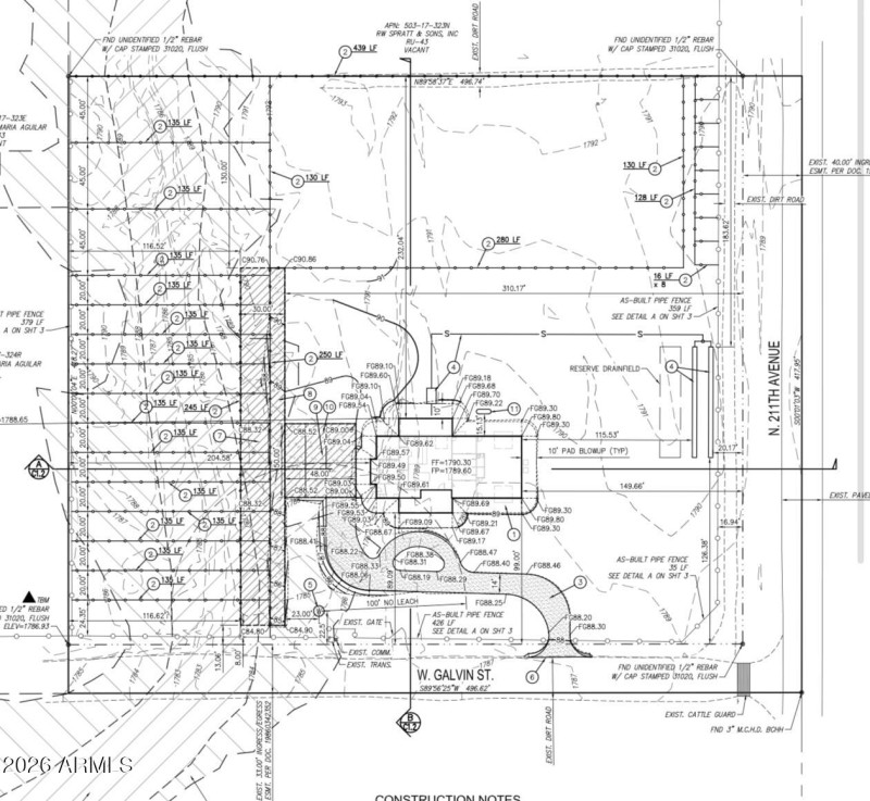
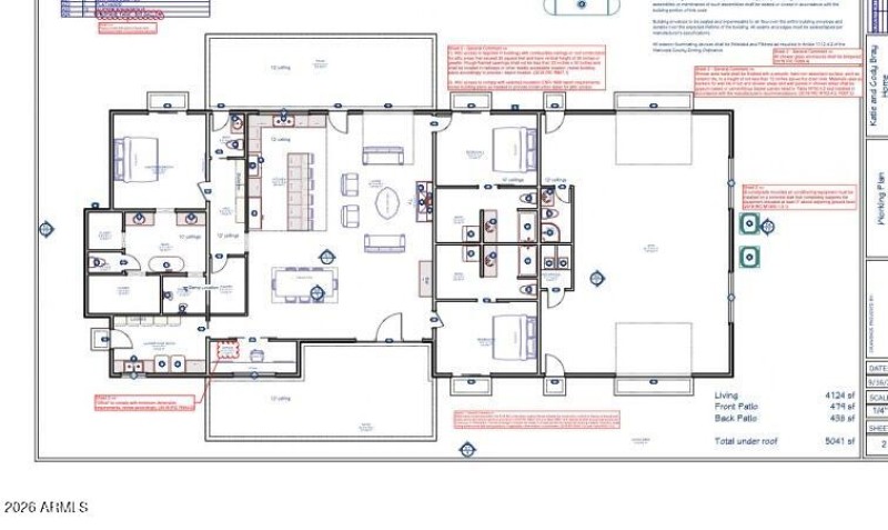
Income-producing opportunity in the heart of Wittmann's sought-after roping community! This fully fenced 4.383-acre parcel offers a rare combination of infrastructure, approved development work, and western lifestyle potential. Included in the purchase price are approved building plans designed with flexibility in mind—ideal for a large family home or a rental investment. The floor plan is designed to allow the property to be rented out up to four separate ways, offering privacy and strong income potential.Extensive groundwork has already been completed, including approved plans, perk test, planning & drainage completion, making this property truly build-ready. Equestrian improvements are already in motion as well, with 20 stalls approved and permitted, along with an approved arena, creating the perfect setup for serious horse enthusiasts.
The land is flat, usable, and serviced by a private well with two 5,200-gallon holding tanks and dual pressure system pumps, providing an excellent foundation for future development. Located just off a paved road, this parcel offers easy year-round access while maintaining a peaceful rural setting.
Enjoy being only 10 minutes from Fry's and Starbucks, approximately 20 minutes from Lake Pleasant, and just 20 minutes to Wickenburg, all while surrounded by a strong western lifestyle community. This is a rare opportunity to own a well-improved property with both investment potential and equestrian-ready possibilities in one of Arizona's most desirable horse property locations.
HWY 74 towards Wickenburg, turn left onto 211th Ave, about 1 1/2 miles, property will be on the right, look for the sign
Dwelling Type: Land
Subdivision: Private well, 4.383 acres
Year Built: N/A, County: N/A
HWY 74 towards Wickenburg, turn left onto 211th Ave, about 1 1/2 miles, property will be on the right, look for the sign
Listing is courtesy of HomeSmart
Sign in to your account to continue