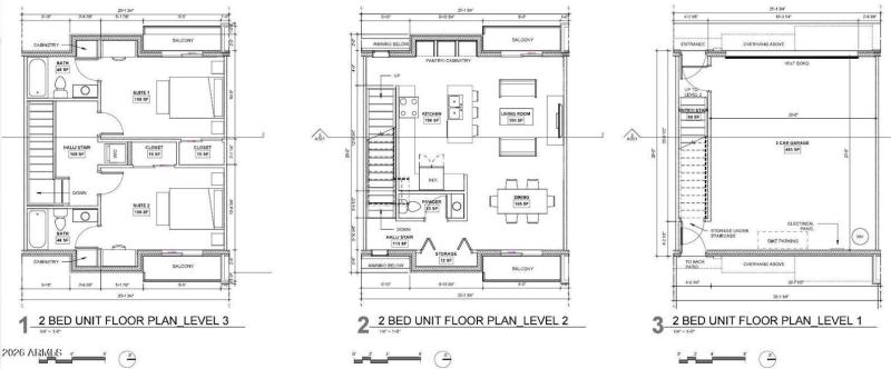
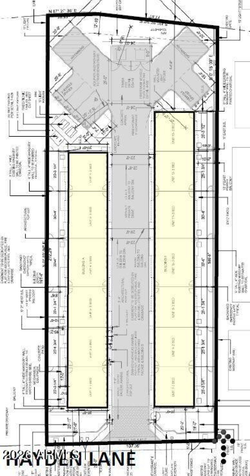
READY TO BUILD, PERMITS READY TO BE PULLED. City-approved construction docs ready to go for a 13-unit modern apartment development. Fantastic rental area in Tempe. Hayden Lane Townhomes is planned with (9) 2-bedroom, 2.5-bathroom and (4) 3-bedroom, 2.5-bathroom units. They all have 4 private balconies per unit and each unit includes a two-car garage. The planned
redevelopment is a highly compatible infill development of a vacant parcel surrounded mainly by multi-family residential uses in the larger area between McClintock Drive and Smith Road, and University Drive to Apache Boulevard. . The north side of Hayden Lane here has transitioned to exclusively multi-family uses over the last 60 years. Hayden Townhomes is very similar to the existing multi-family in the area. Owner Agent.
South on McClintock, East on Hayden Ln, Property is on the North side.
Dwelling Type: Land
Subdivision: O C WATSON TRACT
Year Built: N/A, County: N/A
South on McClintock, East on Hayden Ln, Property is on the North side.
Listing is courtesy of SVN/Desert Commercial Advisors
Sign in to your account to continue