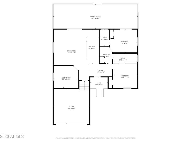
Welcome to your new mountain retreat in the heart of Eagar. This beautifully crafted home finished 2024 offers the perfect blend of modern comfort, privacy, and White Mountain charm. Featuring an open and functional floor plan, abundant natural light, and quality finishes throughout. No detail was overlooked! Enjoy peaceful mornings and cool evenings with outdoor space ideal for entertaining, relaxing, or taking in the mountain air. Located in a quiet neighborhood with easy access to all local amenities, schools, and outdoor recreation. A perfect full-time residence, second home, or investment opportunity in one of the most desirable areas of the White Mountains.
Use GPS. From Main and Central head west on 260. Right onto S River Road. First Right onto Mulligan Rd. Property is on Right.
Dwelling Type: Residential
Subdivision: RIVER RUN ESTATES
Year Built: 2020, County: N/A
Use GPS. From Main and Central head west on 260. Right onto S River Road. First Right onto Mulligan Rd. Property is on Right.
Listing is courtesy of Real Broker
Sign in to your account to continue