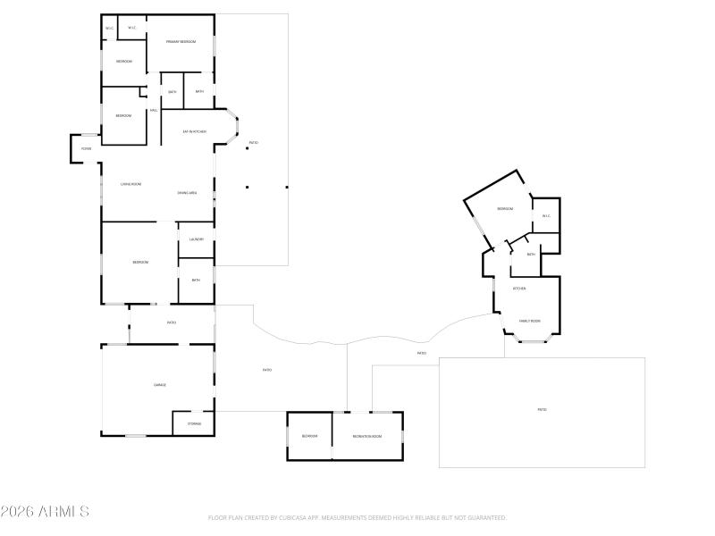
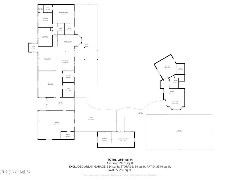
Welcome to this beautifully updated home in Scottsdale's highly sought-after 85254 ''Magic Zip Code,'' offering exceptional space, flexibility, and resort-style living with no HOA. This versatile property features a private one-bedroom casita with its own kitchen, a fun and functional bunk room, and generous living spaces ideal for family, guests, or extended stays. The private backyard is an Arizona standout with a sparkling pool and spa, covered patio, and multiple outdoor living areas—creating a true retreat for relaxing and entertaining. Whether as a primary residence, vacation home, or income-producing opportunity, this home delivers unmatched lifestyle and versatility. Designed for both everyday comfort and memorable gatherings, the open floor plan offers a well-appointed kitchen and seamless indoor-outdoor flow. The separate casita is perfect for multigenerational living, private workspace, or hosting guests, while the bunk room adds flexibility for group stays.
Ideally located just minutes from Scottsdale Quarter and Kierland Commons, plus premier dining, golf, and convenient freeway access, placing North Scottsdale, Paradise Valley, and Old Town within easy reach.
A rare opportunity to own a true Scottsdale compound-style property that blends location, lifestyle, and long-term value.
Dwelling Type: Residential
Subdivision: SHEA NORTH ESTATES NO. 4
Year Built: 1978, County: N/A
Listing is courtesy of Compass
Sign in to your account to continue