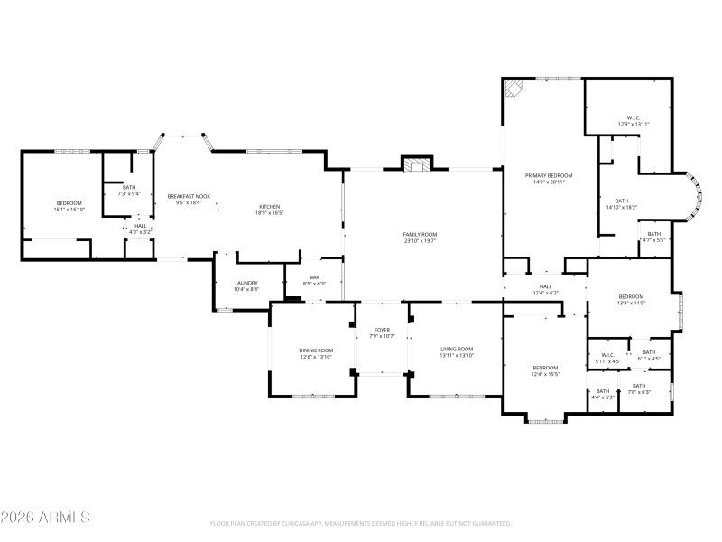
RARE offering nestled in Powderhorn Ranch within the coveted Cactus Corridor. A single-level custom Pueblo Revival style estate AND casita sitting on .59 acres that offers timeless architecture, exceptional privacy, & resort-quality outdoor living in the heart of North Scottsdale.
The main residence spans approximately 3,464 sf & features 4 bedrooms and 3 bathrooms, including a Jack and Jill bathroom.
In addition to the main residence is a gorgeous fully finished & detached casita adding another 1,178 sq ft. The casita includes 2 bedrooms & 2 full bathrooms making it perfect for guests, multigenerational living, or a private executive retreat.
An amazing opportunity to own a meticulously maintained, architecturally rich home in one of North Scottsdale's most desirable enclaves. A charming front courtyard with custom wood doors sets a dramatic arrival, opening to an elegant interior designed for both grand entertaining and everyday comfort.
Custom knotty alder wood cabinetry, wood Vega beamed ceilings, curved archways, hickory hardwood flooring, tumbled travertine flooring, and wood-burning fireplaces create warmth and architectural depth throughout.
The chef's kitchen is a masterpiece with Thermador appliances, entertaining island with a prep sink, custom cabinetry, and sightlines to the lush outdoor spaces--ideal for entertaining.
The primary suite is a serene retreat, offering a luxurious bathroom, master closet with a skylight, and private outdoor access.
Covered patios and intimate outdoor seating areas seamlessly blend indoor and outdoor living. The resort-style backyard is an entertainer's dream, featuring premium turf, mature palms, tall hedges, a sparkling pool, putting green, sports court, jacuzzi all framed by desert landscaping for maximum privacy. Close to Mayo Hospital/Clinic, BASIS schools, and so much more!
East on Cactus, North on 100th Street, turn right on East Corrine Drive. House is on the corner of East Corrine Drive and 101st Place.
Dwelling Type: Residential
Subdivision: POWDERHORN RANCH LOT 1-138 TR D
Year Built: 1988, County: N/A
East on Cactus, North on 100th Street, turn right on East Corrine Drive. House is on the corner of East Corrine Drive and 101st Place.
Listing is courtesy of HomeSmart
Sign in to your account to continue