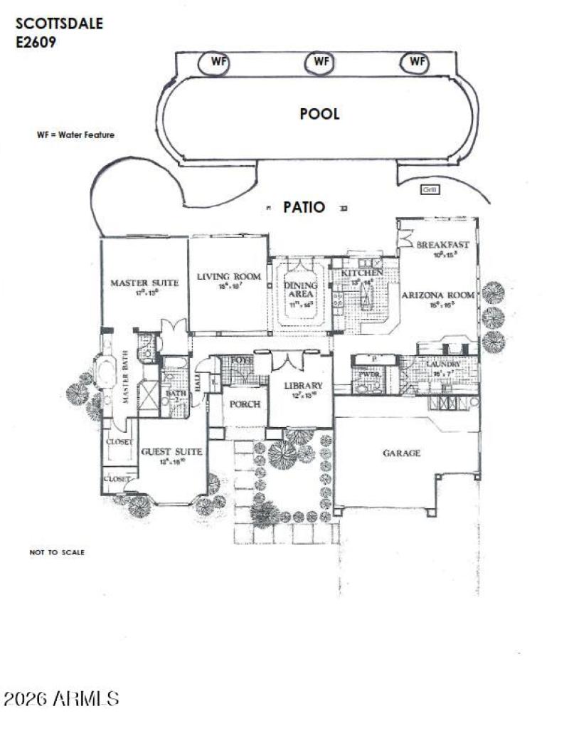
This 2-bedroom, 2-bath pool home offers generous living spaces and a comfortable floor plan in a sought-after active adult community. The home is ready for updating, providing a blank canvas for your personal style. Large bedrooms, ample storage, and a spacious backyard with a large pool add to the home's appeal. A great option for Buyers looking to make thoughtful improvements while enjoying the community's active lifestyle and amenities.
From Deer Valley, go South on Tom Ryan then left onto Via Montoya. House is on the left.
Dwelling Type: Residential
Subdivision: SUN CITY WEST UNIT 52
Year Built: 1994, County: N/A
From Deer Valley, go South on Tom Ryan then left onto Via Montoya. House is on the left.
Listing is courtesy of HomeSmart
Sign in to your account to continue