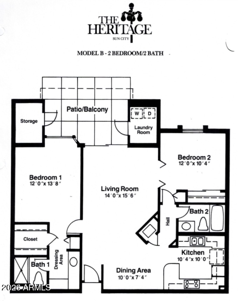
Move-in ready two-bedroom, two-bathroom over 1,100 square feet, first-floor condo in the desirable Heritage Condominiums of Sun City, AZ. This updated split floor plan features brand-new stainless steel appliances, freshly painted cabinets, new LED lighting, and a functional open layout. The spacious primary suite includes a roomy walk-in closet and private bath, while the second bedroom may be ideal for guests or a home office. Enjoy a private patio in a gated, highly secured 55+ community with resort-style amenities including community rooms, heated pool and spa, clubhouse, fitness center. Pickleball, walking paths and tennis courts at local rec centers. HOA covers exterior maintenance, water, sewer, trash, over 100 COX cable channels, and common areas. Conveniently located near shopping, dining, recreation centers, and medical services.
The photo(s) contained in this listing may have been created or enhanced using virtual staging software and therefore may not accurately reflect the current features in the room/home.
North of Bell Road
Dwelling Type: Residential
Subdivision: HERITAGE SUN CITY
Year Built: 1985, County: N/A
North of Bell Road
Listing is courtesy of Coldwell Banker Realty
Sign in to your account to continue