Homes on the golf course in Red Mountain Ranch don't come along often, and when they do, it's usually the setting that steals the show. This delivers the views people dream about, sitting right along the 7th hole with sweeping fairway and Red Mountain scenery that feels peaceful in the morning and dramatic at sunset. But what truly sets this home apart is the peace of mind that comes with knowing the big-ticket items have already been taken care of. This is a home you can move into, enjoy right away, and personalize over time, without worrying about major expenses lurking around the corner. The roof was replaced less than three years ago, the exterior was painted within the last five years, and the windows were updated within the past few years, helping with both comfort and efficiency. The pool has a newer pump and cleaner, the irrigation system has been recently upgraded with new drip lines and sprinklers, and the water heater was replaced within the last few years so was the RO system. Even the garage has been thoughtfully maintained with reconditioned doors and newer openers, and the washer and dryer are recent additions. Inside, the home offers a light-filled, well-designed layout that flows easily from everyday living to entertaining, with views of the course and mountain backdrop creating a sense of calm throughout the space. The backyard feels like a private retreat where you can unwind, host friends, or simply enjoy the rhythm of the golf course beyond your fence. Red Mountain Ranch is known for its strong sense of community, walking paths, parks, playgrounds, and access to golf, making it one of Mesa's most loved neighborhoods for people who want both lifestyle and location. This is the kind of home that gives you the best of both worlds. The setting and community everyone wants, plus the reassurance that the major systems and updates are already in place, leaving you free to focus on making the space your own.
North on Recker. Right on E Star Valley St. Left on N San Gabriel. Home on left.
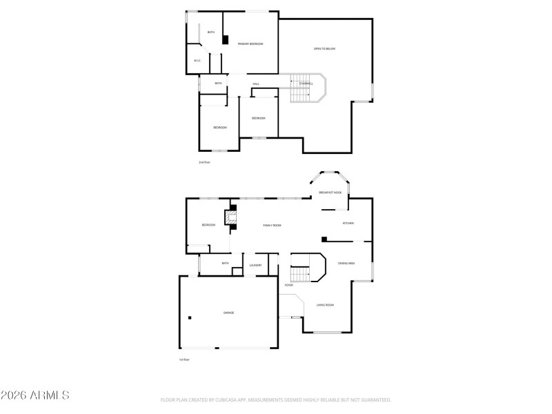
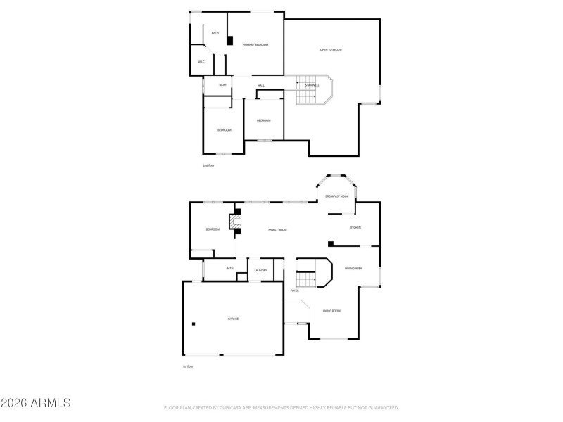
Dwelling Type: Residential
Subdivision: RED MOUNTAIN ESTATES LOT 1-8 9-149 TR A-C
Year Built: 1987, County: N/A
North on Recker. Right on E Star Valley St. Left on N San Gabriel. Home on left.
Listing is courtesy of Century 21 Arizona Foothills
Sign in to your account to continue