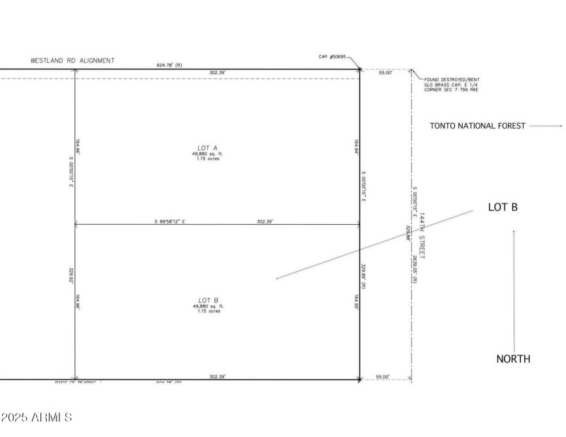
Excellent Corner Lot with the possibility of 2 street addresses and entrances. This Rare Perimeter Property offers Pristine Arizona acreage with breathtaking views and ultimate access. This 1.15 Acre lot is situated in the path of progress and offers incredible unobstructed views of the Tonto National Forest and Vast Mountain range. This is one of the last lots available in the area as most have been sold or built homes on smaller parcels. This is the only lot for sale on the edge of the section so your view can NEVER be obstructed by another building. Lush and distinctive Arizona vegetation and growth accent the property with an untouched appeal. Several Building and development options available.
HWY 101 North , of at Pima exit North, Continue on North Pima, Right at Dynamite, Continue 7.3 miles , Left at 144th St, Head North on 144th to Corner of E Westland and 144th St.
Dwelling Type: Land
Subdivision: N/A
Year Built: N/A, County: N/A
HWY 101 North , of at Pima exit North, Continue on North Pima, Right at Dynamite, Continue 7.3 miles , Left at 144th St, Head North on 144th to Corner of E Westland and 144th St.
Listing is courtesy of Home Valley Realty LLC
Sign in to your account to continue