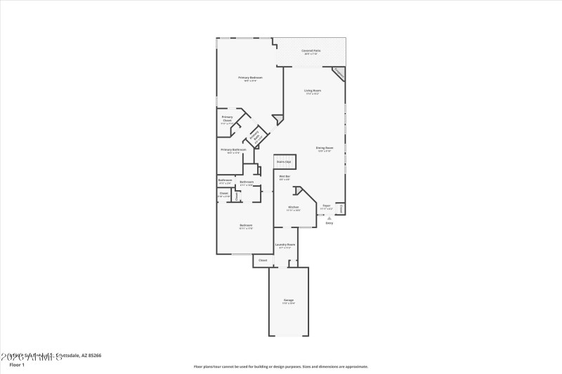
Located at 9151 E Sunflower Ct in the heart of The Boulders, this fully detached southwestern residence offers 2,655 square feet of classic Arizona living with 3 ensuite bedrooms and 3 bathrooms, all positioned on one of the most desirable lots in this section of the community within walking distance to the community pool. With no shared walls, only one neighbor, and a thoughtfully designed desert-landscaped setting, the property delivers open desert and mountain views without overlooking neighboring homes or nearby vehicles - an increasingly rare level of privacy in North Scottsdale. The Boulders is a renowned destination, celebrated for its dramatic rock formations, mountain backdrops, and prestigious North Scottsdale location, and this home captures the essence of what makes the community so special.
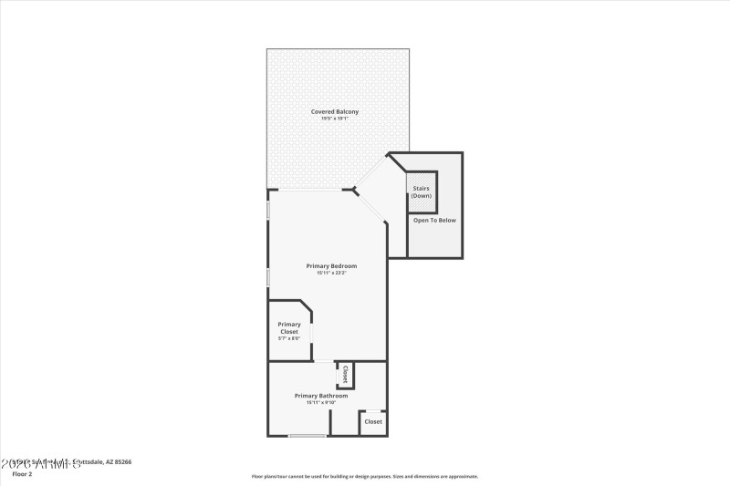
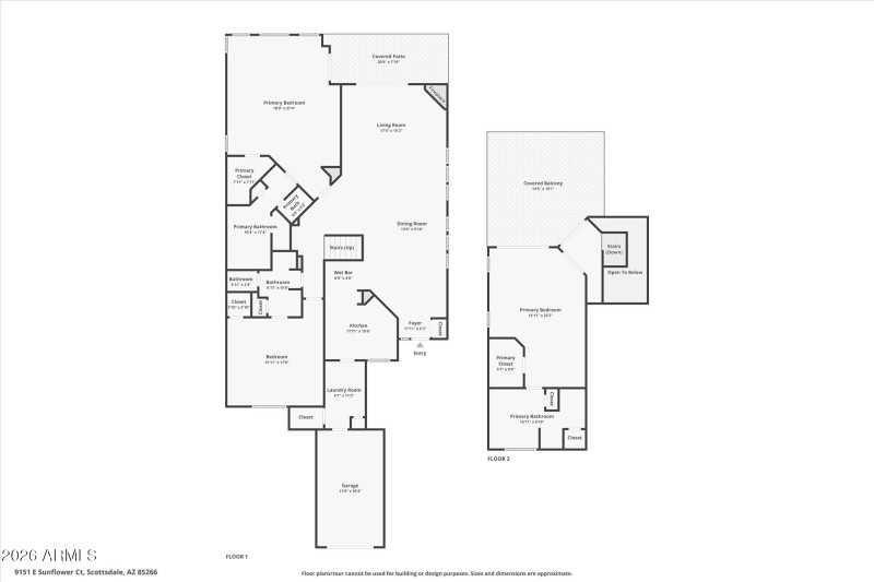
The home's Southwestern architectural style is exactly what many seek in an Arizona residence, highlighted by authentic Saltillo tile flooring, vega beam ceilings, and a warm yet refined aesthetic that feels timeless and regionally appropriate. Inside, the interiors are light and bright with crisp white paint, abundant windows, and an inviting flow that connects indoor spaces to the surrounding desert landscape. The floor plan includes two primary suites along with a third guest suite, offering flexibility for a variety of living arrangements. The upstairs primary suite enjoys a direct access to the balcony, the perfect place to take in sweeping mountain views and unforgettable Arizona sunsets.
This residence is well suited as a full-time home or a highly attractive short-term rental opportunity, thanks to its privacy, layout, and location within one of North Scottsdale's most recognized communities. The property may be purchased furnished or fully turnkey, providing a seamless transition for those seeking immediate enjoyment or rental readiness. Parking is well accommodated with a one-car garage, an additional carport, and driveway space for two more vehicles.
Just minutes away, residents enjoy convenient access to highly rated dining options including The Spotted Donkey Cantina, Palo Verde, and Rare Earth Coffee Roasters, along with the boutiques, galleries, and restaurants of Cave Creek Main Street, all just a five-minute drive away.
Combining privacy, character, and an iconic North Scottsdale setting, 9151 E Sunflower Ct offers a rare opportunity to own a trademark home within The Boulders community.
From Scottsdale Rd., head north of Carefree Highway and enter the community on N. Boulder Pass. Stop at the guard gate. Continue on Clubhouse Rd, turn left on Boulders Pkwy, turn right on Sunflower Ct, 9151 is the corner house.
Dwelling Type: Residential
Subdivision: BOULDERS CAREFREE UNIT 14
Year Built: 1993, County: N/A
From Scottsdale Rd., head north of Carefree Highway and enter the community on N. Boulder Pass. Stop at the guard gate. Continue on Clubhouse Rd, turn left on Boulders Pkwy, turn right on Sunflower Ct, 9151 is the corner house.
Listing is courtesy of RE/MAX Fine Properties
Sign in to your account to continue