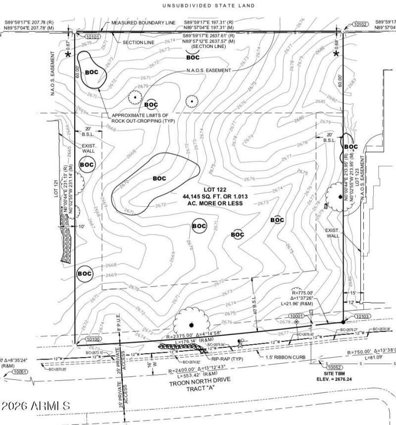
Rare prime view lot in the exclusive gated Talus community at Troon North--one of North Scottsdale's premier enclaves, renowned for dramatic boulder outcroppings and luxury custom estates.
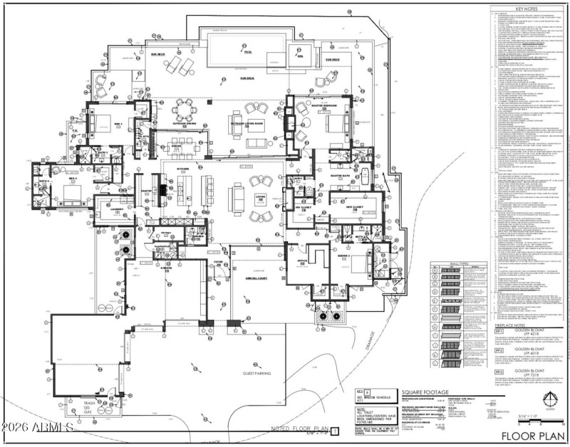
Approved plans ready and available for a stunning single-level custom home by acclaimed Scottsdale architect Craig Wickersham: ~5,305 sq ft, 4 bedrooms + office, 6 baths, 4-car garage--blending modern elegance with the desert surroundings.
The lot backs directly to protected preserve land, delivering unmatched privacy and sweeping, unobstructed mountain and desert views of the iconic Sonoran landscape, rock formations, and endless Arizona skies.
Scarce opportunity to create your private sanctuary in this sought-after gated haven.
North on Alma School Pkwy. Left on Troon North Dr. through the gate. Property is on the Right about 1/4 mile from the gate.
Dwelling Type: Land
Subdivision: BOULDER CREST ESTATES UNIT 3 AT TROON NORTH
Year Built: N/A, County: N/A
North on Alma School Pkwy. Left on Troon North Dr. through the gate. Property is on the Right about 1/4 mile from the gate.
Listing is courtesy of Prestige Realty
Sign in to your account to continue