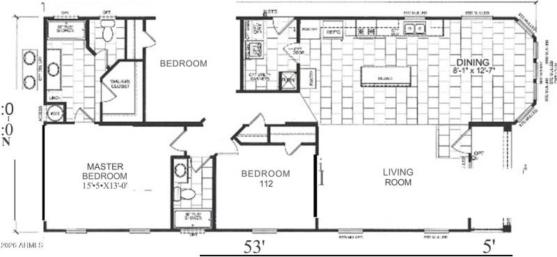
Courtesy Listing for MGN Homes - Michelle Traphagan, Sales. * Located in The Buttes at Sundance 2 55+ Community * 9' FLAT CEILINGS * LG. OH CABINETS W CUBBIES *
4 UPGRADED STAINLESS STEEL APPL. * UPGRADED VINYL PLANK FLOORING * WASHER / DRYER IN BONUS ROOM * SOFT CLOSE CABINETS * LED RECESSED LIGHTING IN KITCHEN * COFFERED CEILING IN LIVING ROOM * PENDANT LIGHTS * HIGH BOY TOILET IN MASTER BATH * UNFURNISHED * FANS OVER DINING ROOM TABLE * EXTERIOR FEATURES: * SOUTH FACING * 18' 71' DOUBLE DRIVE * 18' X 61' DOUBLE AWNING * 12' X 14' SHED W OVERHEAD DOORS * WHITE VINYL DUAL GLAZE LOW E WINDOWS * 6' COVERED DECK * HEAT PUMP * ASSUMABLE TERMITE CONTRACT * LANDSCAPING COMPLETED * FENCING AROUND HOME W TWO GATES * GUTTERS ON NON-AWNING SIDE
N on Thornton to gated entrance for 1820
through the gate property on the left
Dwelling Type: Residential
Subdivision: The Buttes @ Sundance 2
Year Built: 2024, County: N/A
N on Thornton to gated entrance for 1820
through the gate property on the left
Listing is courtesy of JAnnSRE LLC
Sign in to your account to continue