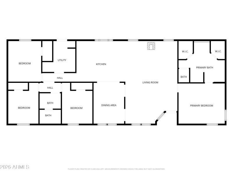
Are you looking for an updated, turnkey property that you can just move into and enjoy?! Look no further! There was no expense spared on this completely remodeled manufactured home
that feels like a modern, drywalled residence--not an older panel-style home. Recent upgrades include a brand-new roof with full tear-off, synthetic underlayment, and ice guard, along with new metal roofing over the front patio featuring tongue-and-groove ceilings. The interior has been fully re-taped, textured, and freshly painted, with new waterproof luxury vinyl plank flooring throughout main living areas and bathrooms, and new carpet in all bedrooms. The remodeled kitchen offers white Shaker, dovetail, soft-close cabinetry, custom butcher block countertops, stainless steel appliances, and a brand-new gas range. The living area features a new real wood-burning fireplace with tile and wood surround.
Both bathrooms have been completely updated. The primary bathroom includes a brand-new soaking tub, tile surrounds, white shaker vanity with black granite countertop, and his-and-hers walk-in closets. Additional upgrades include new recessed lighting, ceiling fans, brushed nickel fixtures, new doors and hardware in common areas, and two new skylights providing abundant natural light.
The laundry room includes washer and dryer, plus a dedicated outlet for a stand-up freezer or additional refrigerator. Exterior improvements include new skirting completed with smart siding (not cheap pressboard), a spacious shed that conveys, a large back deck, and an expansive horseshoe driveway with ample parking.
Situated on a slightly over half-acre lot with mature alligator juniper trees. This huge lot offers plenty of room to build a two-car or larger garage, custom shop, RV parking, and space for all your toys. No HOA, or land leases here! Too many upgrades to list! Do miss the gem!
A rare opportunity for a fully remodeled, move-in-ready home with space, privacy, and modern finishes.
N/E on Porter Mountain Road, Right on Peterson Rd, Left on Parkinson road to home on left.
Dwelling Type: Residential
Subdivision: None
Year Built: 2002, County: N/A
N/E on Porter Mountain Road, Right on Peterson Rd, Left on Parkinson road to home on left.
Listing is courtesy of Bliss Realty & Investments
Sign in to your account to continue