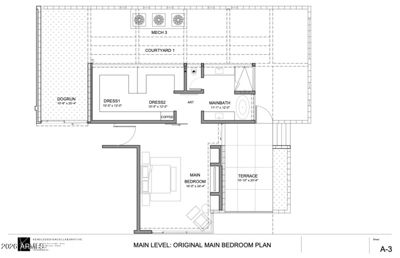
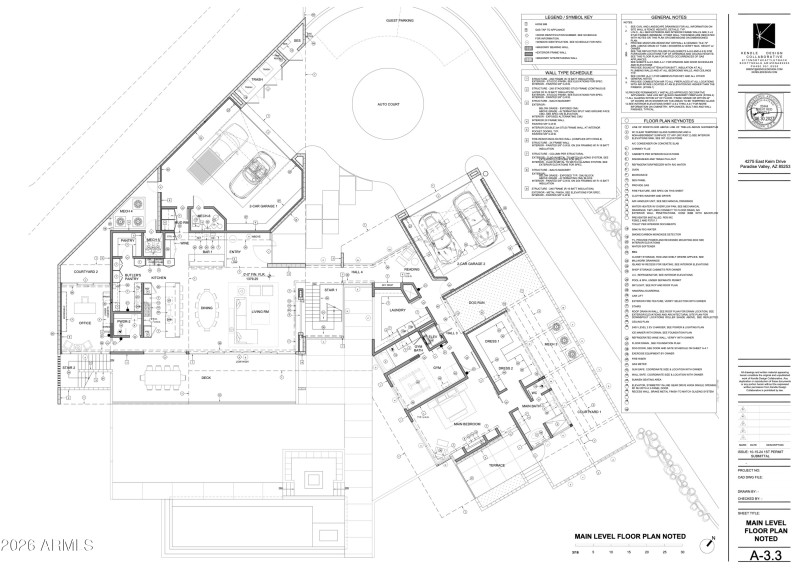
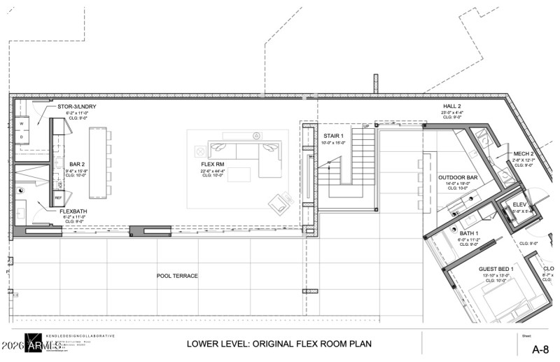
This hillside parcel on Piestewa Peak offers commanding, unobstructed views directly to Camelback Mountain, Praying Monk, and the downtown Phoenix skyline--one of the most recognizable view corridors in the Valley. Unlike raw hillside dirt, this offering includes fully approved architectural plans by Kendle Design Collaborative and an issued permit--allowing a buyer to bypass Hillside and Town of Paradise Valley review and save more than two years in timeline. The proposed modern estate is designed to step naturally with the terrain, maximizing sightlines, privacy, and seamless indoor-outdoor living. From the elevated pool deck and primary living spaces, Camelback becomes a framed focal point--an iconic backdrop that commands premium pricing and buyer demand.
West on McDonald Drive from Tatum Blvd/44th St. North to Keim, west on Keim to property on south side of street.
Dwelling Type: Land
Subdivision: CAMELBACK FOOTHILLS 2
Year Built: N/A, County: N/A
West on McDonald Drive from Tatum Blvd/44th St. North to Keim, west on Keim to property on south side of street.
Listing is courtesy of RETSY
Sign in to your account to continue