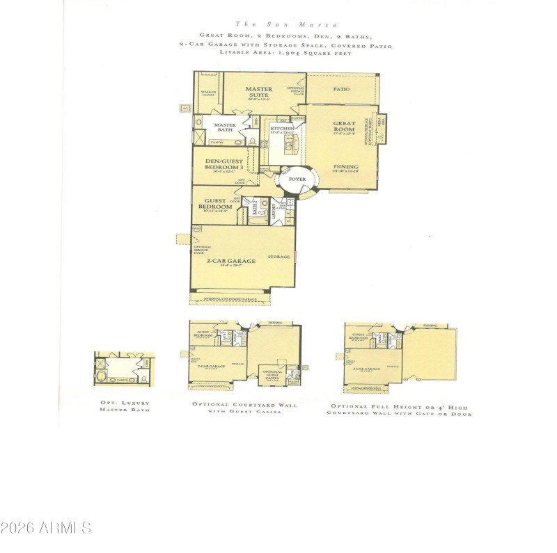
Popular San Marco model in Corte Bella! Beautiful high wall front courtyard with an arched mission-style gate.The round rotunda foyer and split bedrooms are favorite features of the San Marco model. NEW HVAC 2024. New Water Heater and Water Conditioner 2024. Inside you will find all tile floors (except for master) Plantation shutters,stunning stacked stone fireplace wall & fresh interior paint . Updated kitchen appliances and enlarged island w/granite counters and farmhouse sink. The master bath has been beautifully remodeled! Abundant outdoor living space! Extended covered patio, outdoor fireplace and yards of pavers! The yard is fenced.
Enter through the guard gate on Deer Valley, Stay on Mission, Left onto Micheltorena, home is on the left. Park around the next corner, Montecito & Micheltorena
Dwelling Type: Residential
Subdivision: CORTE BELLA COUNTRY CLUB PHASE 1 UNIT E
Year Built: 2003, County: N/A
Enter through the guard gate on Deer Valley, Stay on Mission, Left onto Micheltorena, home is on the left. Park around the next corner, Montecito & Micheltorena
Listing is courtesy of HomeSmart
Sign in to your account to continue