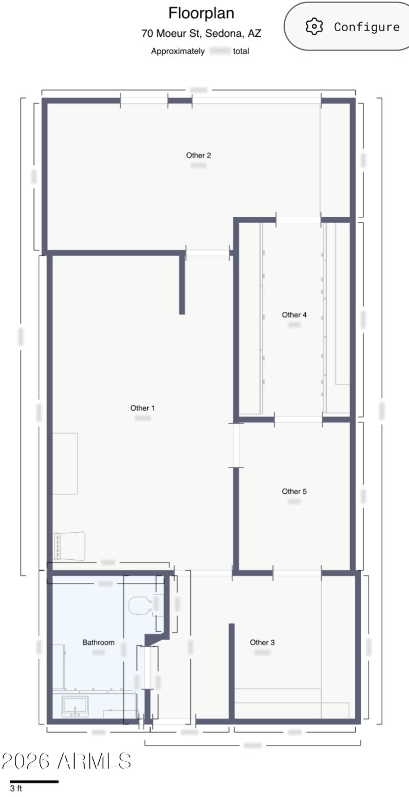
Well-located 847 SF ground-floor commercial suite in the Plaza West complex along State Route 89A, Sedona's primary commercial corridor. The suite offers an efficient layout with a reception area, multiple private offices, and an executive office with a private bathroom and walk-in shower. The property benefits from excellent visibility, convenient access, and ample on-site parking, making it ideal for professional, medical, or service-oriented businesses seeking a presence in West Sedona's active business district.
Southside of 89a between Wells Fargo and Harkins Theater
Dwelling Type: Comm/Industry Sale
Subdivision: N/A
Year Built: 1984, County: N/A
Southside of 89a between Wells Fargo and Harkins Theater
Listing is courtesy of McMahon & Miller Commercial
Sign in to your account to continue