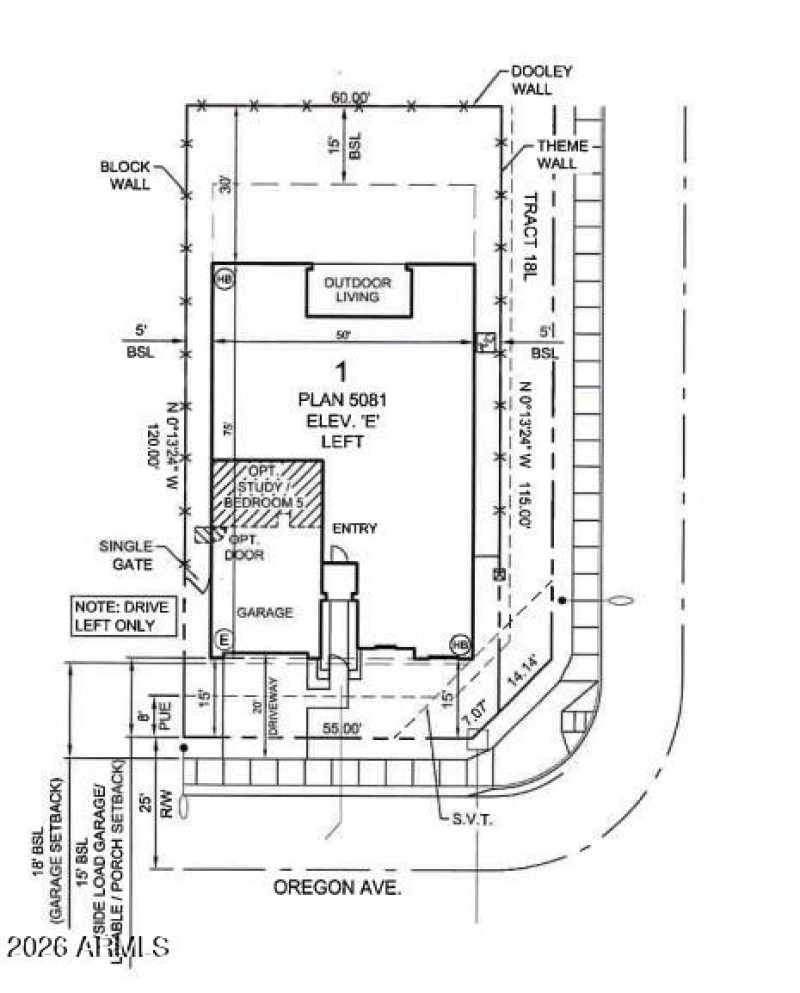
What's Special: Corner Lot | North Facing Lot | South Facing Patio | Dedicated Study. New Construction - Ready Now! Built by America's Most Trusted Home Builder. Welcome to the Bradshaw at 8855 W Oregon Avenue in Stonehaven Expedition! This amazing home offers 4 bedrooms, 3 baths, a study, formal dining area, and 2,866 square feet of well-designed living space - all on one single level. This open plan feels light and airy from the moment you step inside. The heart of the home is the island kitchen that overlooks the dining area, large great room, and covered outdoor living - the ideal layout for entertaining! The spacious primary suite is tucked away in the back of the home for privacy and features a huge walk-in closet and spa-like bath. MLS#6997508 Three secondary bedrooms, a study, a formal dining room, and an oversized laundry room are situated at the front of the home. Experience the best of Glendale at Stonehaven, a master-planned community full of amenities. Enjoy basketball courts, a fun playground, a shimmering pool, and scenic walking trails. Nearby favorites like Top Golf, Chicken N' Pickle, The Sicilian Butcher, Flemings and Desert Diamond Casino make every day easy and fun. Additional Highlights Include: Bedroom 5 with bath 3 in place of tandem, pavers at front porch, garage service door, shower in place of tub/shower at bath 3.
From AZ-101 take exit 6 for Cardinals Wy. Go east on Cardinals Wy for 4.2 miles, then go right (south) on 87th Ave. Take the second left (east) on San Miguel Avenue. The models will be on your left.
Dwelling Type: Residential
Subdivision: Stonehaven Expedition
Year Built: 2026, County: N/A
From AZ-101 take exit 6 for Cardinals Wy. Go east on Cardinals Wy for 4.2 miles, then go right (south) on 87th Ave. Take the second left (east) on San Miguel Avenue. The models will be on your left.
Listing is courtesy of Taylor Morrison (MLS Only)
Sign in to your account to continue