Welcome to wide open space and endless possibilities in Maricopa! Situated on 1.25 fully fenced acres, this property offers the perfect blend of comfort, functionality, and room to live the lifestyle you've been looking for.
From the moment you arrive, you'll appreciate the convenience of the RV gate with direct road access, plus dedicated RV electric and water hookups -- ideal for your toys, guests, or extended stays.
Car enthusiasts, hobbyists, and business owners will love the incredible garage setup: a 2-car attached garage PLUS a 3-car detached garage featuring one bay fully outfitted as a workshop with 10-foot ceilings, 220 wiring, abundant lighting, ceiling fan, built-in cupboards, and attic storage. Whether you're working on projects or need serious storage space, this setup delivers.
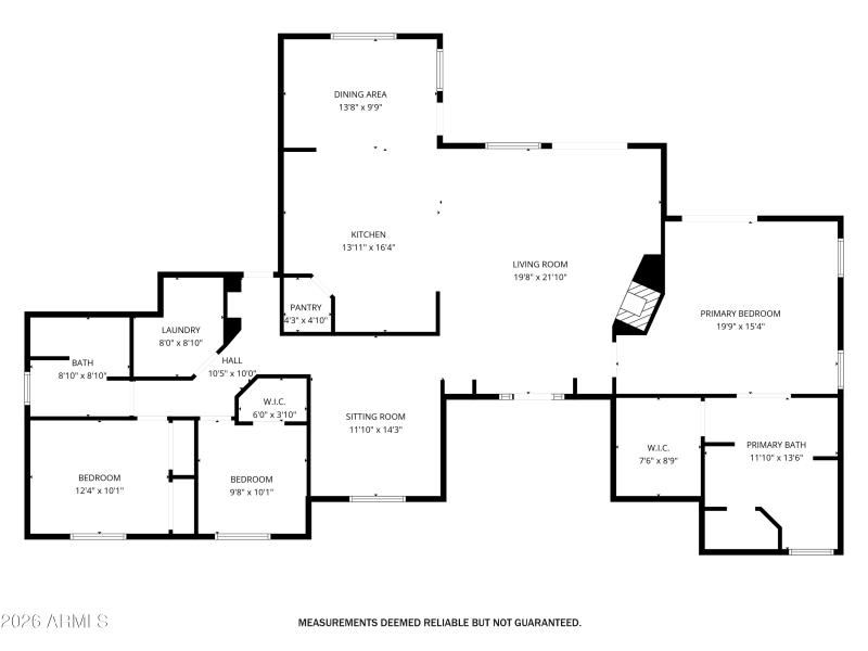
Inside, the thoughtfully designed split floor plan offers 3 bedrooms and 2 bathrooms with both comfort and privacy in mind. The kitchen features Corian countertops, a newer stove and dishwasher, and opens seamlessly into the living space with built-in fireplace and 11 ft ceilings. The formal dining room offers flexibility as a den, office, or bonus room to suit your needs.
The primary suite is a true retreat, complete with private patio access leading to the spa, a spacious ensuite bathroom with separate oversized soaking tub and large walk-in shower, dual vanities, and a generous walk-in closet.
Additional upgrades and features include:
$17,000 in brand new windows
Reverse Osmosis system & water softener
All newer faucets throughout
Good-sized laundry room with extra refrigerator (included)
LG front-load washer & dryer (included)
Hot tub for relaxing evenings
The East/West lot orientation provides an East-facing backyard for cooler shaded afternoons on the patio, while the front of the home captures breathtaking Arizona sunsets.
If you've been searching for acreage, garage space, RV accommodations, and a well-maintained home -- all in one -- this one checks the boxes.
South on Hwy 347. West on Clayton Rd, North on Amarillo Valley Rd, West on Century Rd, North on Jakobs Ln. Home is on the left/corner.
Dwelling Type: Residential
Subdivision: S24 T6S R2E
Year Built: 2005, County: N/A
South on Hwy 347. West on Clayton Rd, North on Amarillo Valley Rd, West on Century Rd, North on Jakobs Ln. Home is on the left/corner.
Listing is courtesy of Keller Williams Realty Sonoran Living
Sign in to your account to continue