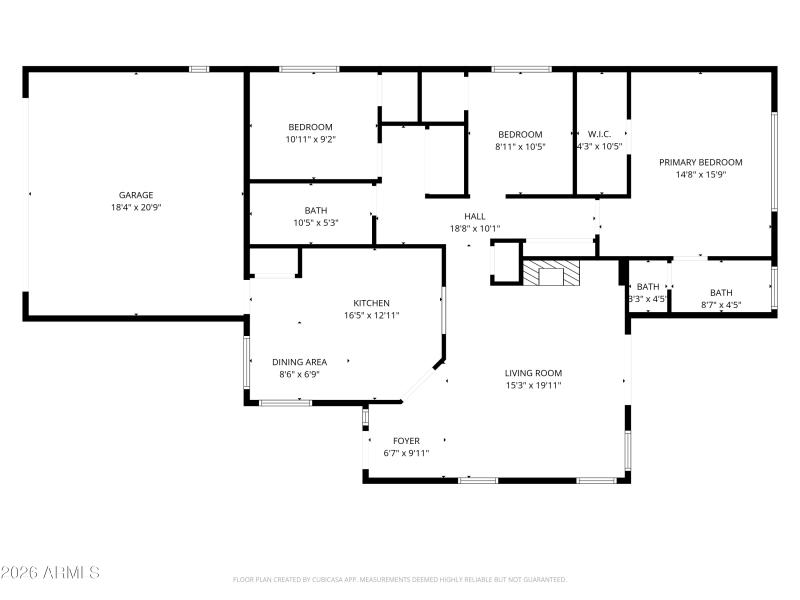
Charming 1-story home featuring 3 bedrooms, 2 bathrooms, and a 2-car garage with a functional open layout. The kitchen offers a breakfast area and flows into the living space, creating an inviting setting for everyday living. The primary suite includes a double vanity and ample storage. Enjoy a covered patio and a fenced backyard, perfect for relaxing or entertaining. MOVE-IN READY with great potential!
From I-10: Exit Dysart Rd → go north → turn right (east) on Osborn Rd → turn left (north) on 127th Ave → turn right on Cheery Lynn Rd → home on the left
Dwelling Type: Residential
Subdivision: CORTE SIERRA UNIT 2
Year Built: 2000, County: N/A
From I-10: Exit Dysart Rd → go north → turn right (east) on Osborn Rd → turn left (north) on 127th Ave → turn right on Cheery Lynn Rd → home on the left
Listing is courtesy of Mainstay Brokerage
Sign in to your account to continue