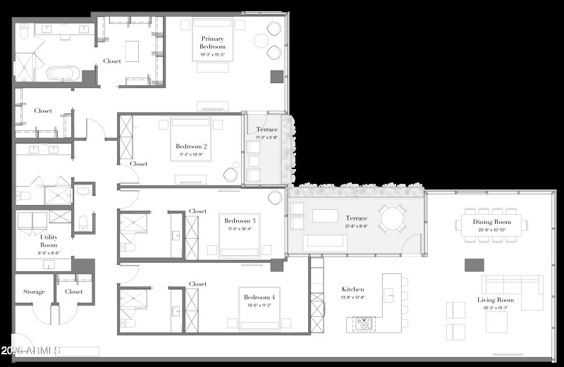
Now Selling: Optima McDowell Mountain, a new luxury condo community in North Scottsdale delivering Spring/Summer 2027. Set on 22 acres with 75% open space, it features six 8-story buildings and a 10-acre park with a walking path and putting green. One-, two-, and three-bedroom homes (729-2,218 SF) offer floor-to-ceiling windows, high-end appliances, and private terraces with vertical gardens. Enjoy resort-style amenities and walk to Whole Foods, Buck & Rider, shops, and more. Live the modern desert lifestyle. Spanning 3,237 square feet, this 3-bedroom, 3.5-bathroom residence is thoughtfully designed for those who appreciate refined living, architectural integrity, and a seamless connection to the surrounding landscape. Among the Signature Collection, this is the only residence of its kind.
N or S on Scottsdale Rd- East on Mayo Blvd
Dwelling Type: Residential
Subdivision: OPTIMA MCDOWELL MOUNTAIN 7230 CONDOMINIUM
Year Built: 2027, County: N/A
N or S on Scottsdale Rd- East on Mayo Blvd
Listing is courtesy of Polaris Pacific of AZ
Sign in to your account to continue