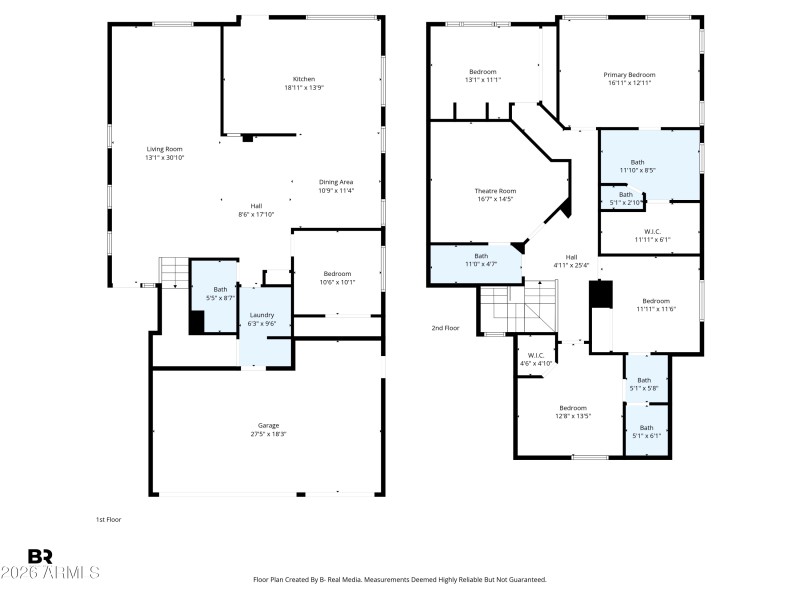
Experience this completely reimagined 5 bed, 4 bath home nestled in the Vintage Hills enclave of Las Sendas, with close proximity to Las Sendas Elementary. This functional, multi-use floor plan features quartz counters, added loft/media room, extra full bath & abundant storage throughout. The backyard is built for entertaining with a swim-up bar spool, fire pit, mini putting green & dedicated dog run. Additional highlights include upgraded appliances, garage epoxy flooring completed April 1st, plus overhead garage storage and additional interior strage/mud room. Ideally located near community amenities including splash pad, pools, pickleball, tennis, basketball, volleyball & more. Nearby shopping, dining & outdoor recreation including Salt River & Saguaro Lake for year round enjoyment
East on Eagle Crest Drive, South on Red Mountain, West on Portia to gated enclave of Vintage Hills, South on Sonoran Hills, West on Pearl Street to home on North side of street
Dwelling Type: Residential
Subdivision: VINTAGE HILLS AT LAS SENDAS
Year Built: 2005, County: N/A
East on Eagle Crest Drive, South on Red Mountain, West on Portia to gated enclave of Vintage Hills, South on Sonoran Hills, West on Pearl Street to home on North side of street
Listing is courtesy of HomeSmart
Sign in to your account to continue