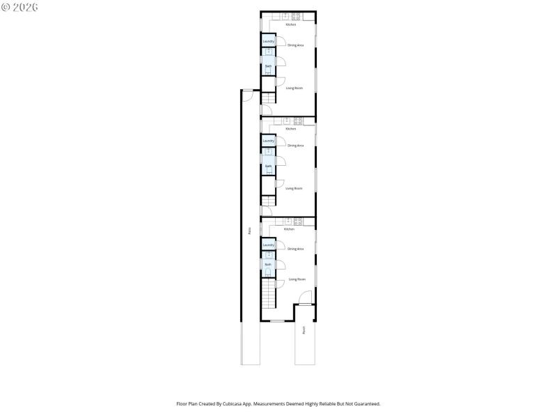
Discover this charming 2-bed, 2.5-bath triplex in Portland, OR, a modern marvel perfect for both living and/or investing. Set in a prime location, this 789 sqft newly-constructed home invites natural light through its large windows, creating a vibrant and welcoming atmosphere. Enjoy the convenience of being short distance to schools, lush parks, and easily accessible freeways. The absence of an HOA makes it even more appealing for multifamily living. This property is particularly attractive for buyers eligible for the Portland Housing Bureau’s SDC Exemption, designed to foster affordable housing. A great opportunity awaits with the competitive list price tailored for those seeking both value and quality in one of Portland's desirable locales. **Sales price is subject to buyer SDC approval. Non-SDC Waiver eligible Buyer is a $30k increase from advertised listing price. SDC waiver eligibility is primarily based on buyer's income being equal to or less than the MFI of $148,920 year per family of 1-4 people.
E Burnside St, Se 117th ave
Dwelling Type: MultiFamily
Subdivision: N/A
Year Built: 2026, County: US
E Burnside St, Se 117th ave
Listing is courtesy of The Lachlan Group
Sign in to your account to continue