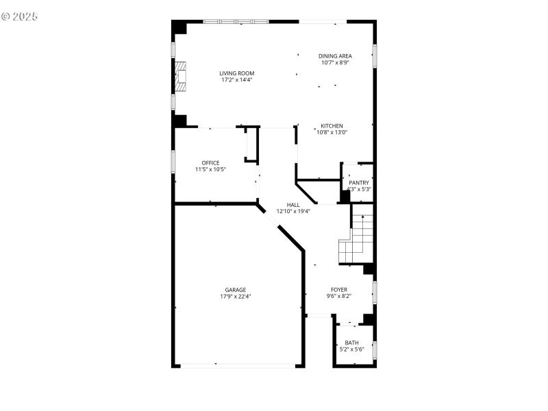
Welcome to this charming two-story home offering 2,428 square feet of comfortable living space. Featuring four bedrooms and two and a half bathrooms, the layout provides plenty of flexibility for family, guests, or even a home office. The living room showcases stylish laminate flooring, a cozy fireplace, and ceiling fans, creating a warm and inviting atmosphere. Just off the living area, the kitchen offers a practical design with a center island, built-in microwave, dishwasher, and a large pantry for added storage.Upstairs, the primary suite includes wall-to-wall carpeting, a spacious walk-in closet, and a private en-suite bathroom. The additional bedrooms are well-sized and comfortable, each with generous closet space and soft carpeting throughout. You’ll also appreciate the dedicated laundry area and extra storage options.Outside, enjoy a fully fenced backyard with a covered patio that’s perfect for relaxing or entertaining. Located in a desirable Beaverton neighborhood, this home combines comfort, space, and convenience—with no HOA.
From SW Farmington Rd, turn onto SW Max Ct and follow to 17478.
Dwelling Type: Residential
Subdivision: N/A
Year Built: 2015, County: US
From SW Farmington Rd, turn onto SW Max Ct and follow to 17478.
Listing is courtesy of Knipe Realty ERA Powered
Sign in to your account to continue