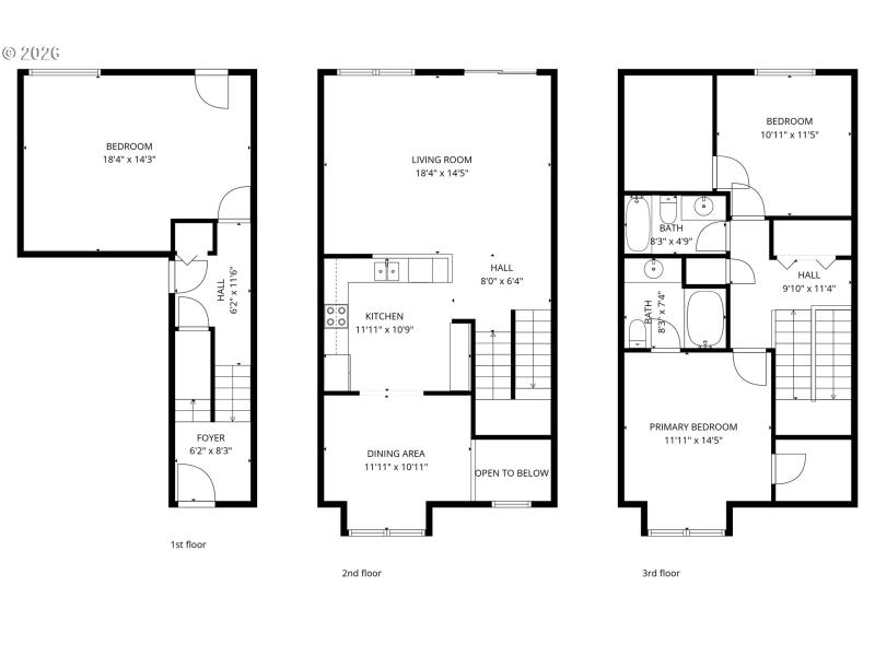
Beautifully updated and truly move-in ready, townhome is a 3-bedroom, 2-bath home with over 2,000 sq ft that feels like new construction—tucked into a serene setting backing to greenspace with gorgeous tree views. Offering spacious living and plenty of storage, the layout is as functional as it is inviting. The open floor plan is made for entertaining, connecting a large living room (with a gas line in place for a fireplace) to a modern, oversized kitchen with newer countertops, a new dishwasher, and a pantry that lets you stock up and “cook like a pro.” Slide outside to the deck and backyard, perfect for BBQs, gatherings with friends, or quiet mornings surrounded by trees. Recent upgrades include fresh interior paint throughout, new luxury vinyl plank flooring,new faux-wood blinds, a new ceiling fan, and modern fixtures in the primary suite. Enjoy the attached garage, brand-new fence and an ideal location: Washington Square, Bridgeport Village, and Progress Ridge, with easy access to major highways for commuting and everyday convenience. Open Sun 3/8 from 11 am - 1pm.
Gaarde to Big Leaf, follow to Left on Raptor
Dwelling Type: Residential
Subdivision: N/A
Year Built: 2000, County: US
Gaarde to Big Leaf, follow to Left on Raptor
Listing is courtesy of Keller Williams Realty Professionals
Sign in to your account to continue