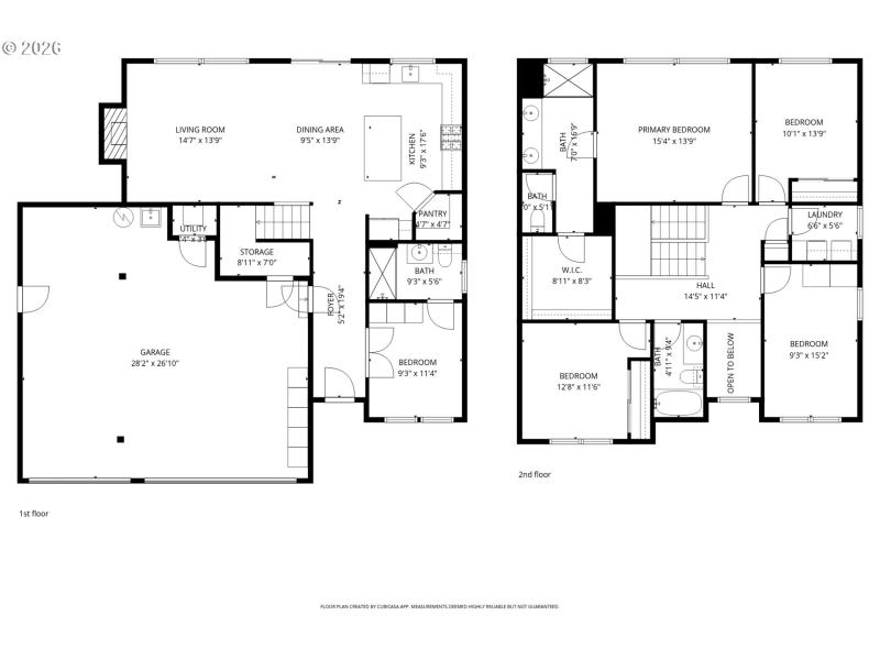
Better than new energy efficient home only steps to Trillium Park! This spacious home features high ceilings with an open great room layout & a 3 CAR GARAGE! Modern kitchen features Granite counters, SS appliances, pantry, & island w/eating bar. Main level office/potential 5th bedroom features a full bathroom with walk-in shower. Great primary suite with walk-in closet. Upstairs you will also find 3 additional bedrooms & the laundry room. Established fenced yard features tool shed & covered patio. Solar panels are OWNED keeping your electricity costs LOW! Come see this move-in ready home today!
Boones Ferry to Dahlia to Autumn, Right on Sunflower
Dwelling Type: Residential
Subdivision: N/A
Year Built: 2018, County: US
Boones Ferry to Dahlia to Autumn, Right on Sunflower
Listing is courtesy of Berkshire Hathaway HomeServices NW Real Estate
Sign in to your account to continue