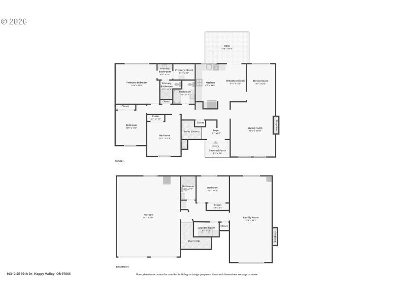
Welcome to this beautifully maintained, not-your-average-split-level home in the desirable Mt. Scott area of Happy Valley! Nestled among mature trees, this property offers a peaceful, park-like setting with a large backyard perfect for relaxing or entertaining. Inside, you’ll find a bright and inviting layout featuring hardwood floors, granite surfaces, stainless steel appliances, and energy-efficient upgrades throughout. Wood-burning fireplaces on both levels add warmth and just the right amount of a cozy vibe, complemented by central air and efficient forced-air heating for year-round comfort. The spacious floor plan includes multiple living areas - could be great for multi-generational living - and generous bedrooms with large closets and ceiling fans. The newly remodeled downstairs bathroom comes complete with a no-threshold shower. Step outside to a fenced yard with a deck and patio ideal for gatherings. The attached extra-deep garage includes an EV plug, and don't miss the abundant storage space under the stairs. Located in a quiet and serene community with HOA maintained nature trails, yet easy access to shopping, Kaiser Hospital, and I-205. This home blends comfort, style, and functionality in a beautiful natural setting.
GPS
Dwelling Type: Residential
Subdivision: N/A
Year Built: 1978, County: US
GPS
Listing is courtesy of Redfin
Sign in to your account to continue