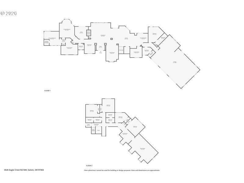
The ultimate GATED & MANICURED dream property! Your own private slice of heaven in the highly desirable hills of West Salem, CLOSE TO WINE COUNTRY! One of a kind exquisite 6 bedroom, 6 bathroom, custom-built estate by Comfort Homes LLC. This home is conveniently located & is just minutes from downtown Salem. Boasting 5,332 square feet of luxurious living space and set on 4.79 acres, this home offers the perfect balance of privacy, comfort, and breathtaking panoramic views of Mt. Jefferson and the city of Salem skyline. Inside, you’ll find an open-concept design featuring a gourmet kitchen with high-end appliances, elevated finishes throughout, a spacious family room, and a formal dining room ideal for entertaining. The main-level primary suite is a true retreat, complete with a large walk-in closet and a spa-like en suite with a walk-in shower and oversized two-person Jacuzzi tub. A second main-level bedroom includes its own en suite and kitchenette, offering an ideal setup for multigenerational living, guests, or a caretaker. Upstairs are four additional generously sized bedrooms and two full bathrooms, perfect for family or visitors. An intimate den with a cozy fireplace sits between the family room and the primary suite, offering a quiet spot to relax. Additional highlights include:* Mudroom and spacious laundry room* Attached OVERSIZED 3-car garage* Covered back porch with outdoor fireplace and built-in BBQ* Large Detached LARGE 4-bay shop w/ water, electric & sewer, including one oversized bay for RV or motorhome* Fully fenced pasture, ideal for animals *Dual zone hvac system *Full home plumbing resirc system * Full home instant generator system * Orchard w/ fruit trees * Full home sound system *turf yard low maintenance * Ample parking for guests. Perfect for NW Living & Entertaining! Don’t miss your chance to own a one-of-a-kind property w/ spectacular views & exceptional amenities in Salem’s most sought-after locations. Dual Living! Visit Virtual tour Link!
From Wallace Rd NW, turn westonto Brush College Rd. NW, leftonto Gibson Rd NW, right ontoEagle Crest
Dwelling Type: Residential
Subdivision: N/A
Year Built: 2008, County: US
From Wallace Rd NW, turn westonto Brush College Rd. NW, leftonto Gibson Rd NW, right ontoEagle Crest
Listing is courtesy of HomeSmart Realty Group
Sign in to your account to continue