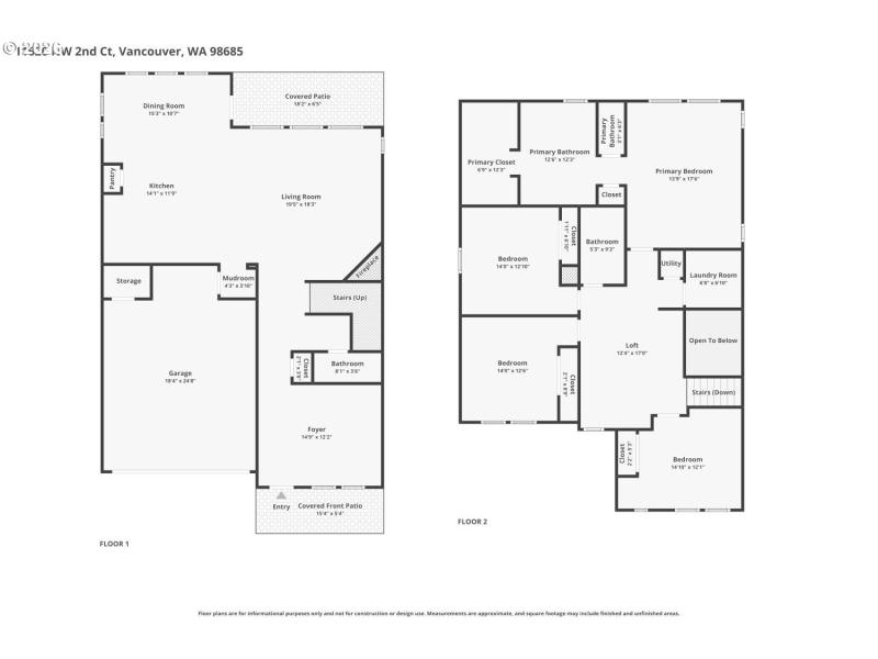
If you've been looking for a newer construction home that offers a good size backyard, you're going to want to see this one built by David Weekly Homes! Located in the desirable Salmon Creek/ Felida area you are minutes from I5 and the Salmon Creek trail! The main level features a flex room upon entering that works well as a home office or sitting area, flowing into an open-concept kitchen and living space. A dining nook with large windows looks out onto the fully fenced backyard with a covered patio. Upstairs, a loft landing adds useful bonus space for a second living area. The primary suite includes a soaking tub, walk-in shower, and a large walk-in closet. Three additional bedrooms round out the upper level.Built with efficiency in mind - 95% forced air heating and an electric hybrid water heater keep utility costs down. Ask about our lender incentive offering towards buyer closing costs!
117th L ON 3RD L ON NW 116TH L 2ND CT
Dwelling Type: Residential
Subdivision: N/A
Year Built: 2018, County: US
117th L ON 3RD L ON NW 116TH L 2ND CT
Listing is courtesy of Cascade Hasson Sotheby's International Realty
Sign in to your account to continue