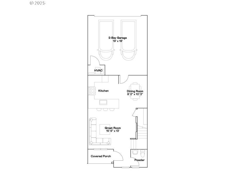
Welcome to the Butternut Creek community by Lennar. The new-construction Pioneer plan offers a modern two-story townhome layout with an open-concept design that connects the great room, kitchen, and dining area for comfortable living and entertaining. Upstairs, a versatile loft separates the three bedrooms, including a private primary suite with an ensuite bathroom featuring a double vanity and walk-in closet. Interior finishes feature quartz countertops, Shaker-style cabinets, LVP (luxury vinyl plank) flooring in the kitchen and entry, LVT (luxury vinyl tile) flooring in the bathrooms, two-tone interior paint, and landscaping. This home also includes central air conditioning, a refrigerator, washer and dryer, and blinds—all at no extra cost! Butternut Creek offers a community park with picnic areas, a sports court, bike track, dog parks, and open space, all within minutes of the Intel campus and Reed’s Crossing Town Center. Photos are of a similar home, features and finishes will vary. Homesite 434 - move in ready. Below-market rate incentives available when financing with preferred lender. [Home Energy Score = 10. HES Report at https://rpt.greenbuildingregistry.com/hes/OR10243321]
SW Cornelius Pass to Left on Butternut Creek Pkwy. Welcome Home Center is on the corner of 77th
Dwelling Type: Residential
Subdivision: BUTTERNUT CREEK
Year Built: 2026, County: US
SW Cornelius Pass to Left on Butternut Creek Pkwy. Welcome Home Center is on the corner of 77th
Listing is courtesy of Lennar Sales Corp
Sign in to your account to continue