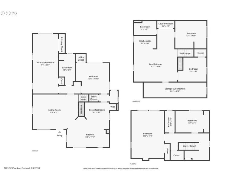
Updated Roseway Cape Cod in NE Portland Offering Timeless Character with Modern Comfort Under $600,000. Enjoy the Charm of a Classic 1928 Home with Major Updates Including a New Roof, New Windows, Mini Splits, Smart Lighting & Gorgeous New Kitchen. Culinary Creativity Will Flourish with Expansive Quartz Counters, a Center Island, Stainless Steel Appliances, and a Bench Eating Nook to Enjoy Meals. Designed to complement the Home, The Original Built-Ins Remain to Add Timeless Charm to the Kitchen. Hardwood Floors Extend Throughout the Main & Highlight the Bright Living Room with New Gas Fireplace. The Spacious Main-Level Primary Bedroom + Flexible Office or 2nd Bedroom with French Doors to Backyard Completes the Ideal Main Floor Living Layout. Upstairs Includes Two Good Sized Bedrooms & Half Bathroom. The Side Entry Door Off the Kitchen Provides Potential for Separate Living Quarters on the Lower Level with Kitchenette, Family Room, Laundry & 2 Additional Rooms. The Beautifully Landscaped Backyard with Hot Tub Is Perfect For Entertaining, Gardening, Pets & Play, Alongside the Long Driveway for Ample Off Street Parking. [Home Energy Score = 4. HES Report at https://rpt.greenbuildingregistry.com/hes/OR10245216]
Freemont; North on 63rd Ave.
Dwelling Type: Residential
Subdivision: ROSEWAY / ROSE CITY PARK
Year Built: 1928, County: US
Freemont; North on 63rd Ave.
Listing is courtesy of Keller Williams Realty Professionals
Sign in to your account to continue