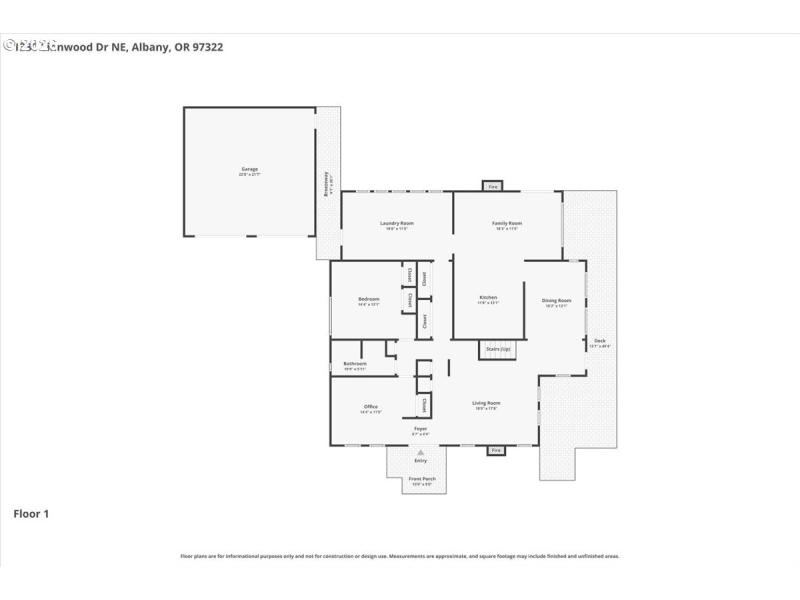
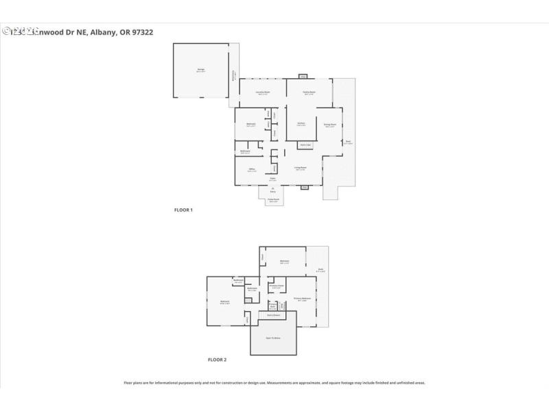
Scravel Hill
Dwelling Type: Residential
Subdivision: N/A
Year Built: 1972, County: US
Scravel Hill
Listing is courtesy of RockholtRE LLC
Sign in to your account to continue