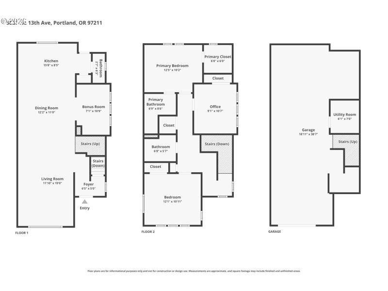
OPEN HOUSE Sat 3/14 1-3pm & Sun 3/15 12-3pm. Live between Portland’s vibrant Alberta Arts District and the popular Dekum Triangle in this updated 3-bedroom, end-unit townhouse. Open living spaces include a main-floor flex/office area, while the fenced patio offers a private outdoor retreat. The oversized tandem 2-car garage provides excellent storage for bikes and gear. Recent updates include stainless steel appliances, A/C, and a newer water heater. Rare opportunity with no HOA dues in one of Northeast Portland’s most walkable locations, just minutes from Alberta Street and Dekum dining, cafés, and shops [Home Energy Score = 7. HES Report at https://rpt.greenbuildingregistry.com/hes/OR10245810]
MLK, East on Killingsworth, N on 13th Ave
Dwelling Type: Residential
Subdivision: Alberta Arts
Year Built: 2008, County: US
MLK, East on Killingsworth, N on 13th Ave
Listing is courtesy of NextHome Realty Connection
Sign in to your account to continue