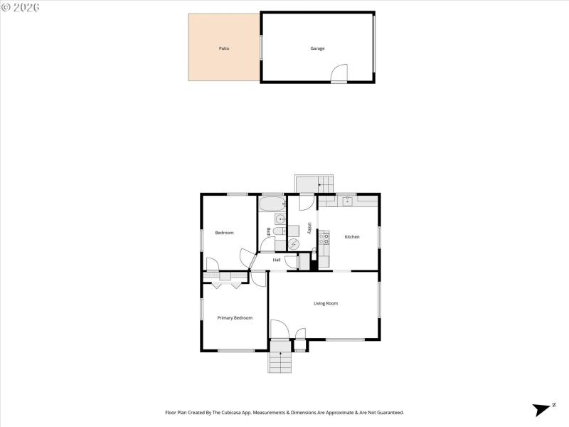
Step inside this welcoming single-story corner home and feel instantly at ease. Hardwood floors and arched doorways lead through a cozy layout that feels larger than it is. Two ductless mini-splits keep the home comfortable year-round, while a detached garage offers space for hobbies, projects, or extra storage. Outside, the fully fenced backyard invites pets to play, gardening in the raised beds, or relaxing in the sun. Take a morning stroll to Lake Sacajewea, an afternoon to Harlies Hoops or the park, and know the hospital is just two blocks away. Downtown restaurants and grocery stores are five blocks from your door, with I-5 only 3 miles away for easy commuting. Comfort, charm, and convenience all in one home.
Nichols BLVD. to 20th Ave.
Dwelling Type: Residential
Subdivision: NEW WEST SIDE
Year Built: 1950, County: US
Nichols BLVD. to 20th Ave.
Listing is courtesy of eXp Realty LLC
Sign in to your account to continue