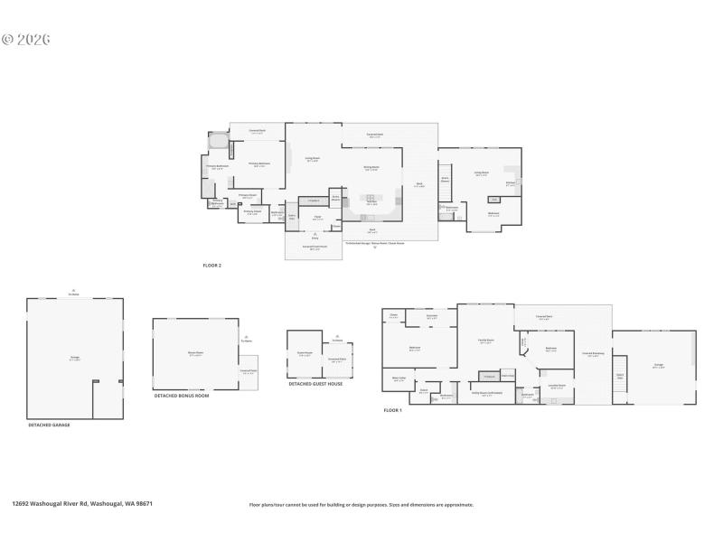
Set on 1.81 private acres along the Washougal River, this exceptional chalet offers a rare blend of refined luxury, natural beauty, and 3 outbuildings offering ultimate flexibility. Framed by serene river and forest views, the setting feels both tranquil and unforgettable. Inside, heated slate flooring and rich architectural details create a warm, elevated atmosphere. The upper-level great room is anchored by a dramatic fireplace—one of four throughout the home—and opens to an expansive kitchen with premium Wolf and Bosch appliances. The primary suite is also located on this level, offering a secluded retreat with a spa-inspired ensuite with a double-sided fireplace. The main level features two additional bedrooms, a comfortable family or games room, and a wine room with capacity for 500 bottles. A functional mudroom with integrated laundry adds convenience with its exterior entry. Connected by an expansive deck, off the kitchen, a guest suite or ADU conversion sits above the attached two-car garage. The property continues to impress with a detached 1,240-square-foot workshop equipped with 240-amp service and water, a dedicated pottery studio with kiln capability, and a third separate building already connected to septic with water available—perfect for a future ADU, private business space, or guest home. A truly distinctive, one-of-a-kind offering where craftsmanship, versatility, and a breathtaking natural setting come together.
Hwy 14 N on Washougal River Rd. Approx .6 mile past mile marker 12. Sign off Washougal River Rd.
Dwelling Type: Residential
Subdivision: N/A
Year Built: 2007, County: US
Hwy 14 N on Washougal River Rd. Approx .6 mile past mile marker 12. Sign off Washougal River Rd.
Listing is courtesy of Redfin
Sign in to your account to continue