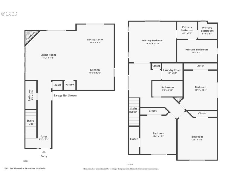
Stunning newer-built (2012) and move-in ready home on quiet dead-end street. Great starter or investment property oppurtunity! Brand new LVP Flooring & Carpet! Great-room floor plan provides spacious living and wonderful entertaining space. Primary bedroom boasts vaults, walk-in shower and huge walk-in closet (13'x7') for tons of storage! NO HOA, low maintenance backyard, and plenty of parking for entertaining. 5 min walk to the elementary school, 10 min drive to Nike’s WHQ/Intel/Costco/downtown Beaverton/Cedar Hills Shopping amenities, 15 mins to Lifetime Fitness/Progress Ridge/Washington Square! See 3D matterport tour & floorplan uploaded!
Kinnaman to 175th to Winona Lane
Dwelling Type: Residential
Subdivision: N/A
Year Built: 2012, County: US
Kinnaman to 175th to Winona Lane
Listing is courtesy of LUXE Forbes Global Properties
Sign in to your account to continue