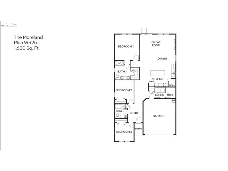
New construction in Salem! This functional one-level floor plan has 1,630 square feet and boasts 3 bedrooms, and 2 bathrooms. The two front bedrooms are connected by a centrally located full bathroom for enhanced convenience. The laundry room is right by the kitchen and has easy access from the garage. The stylish kitchen is completed with stainless-steel appliances, a practical corner pantry, central island, quartz countertops, gas range/oven with a vent hood, inviting you to unleash your culinary creativity. Adjacent to the kitchen, the dining area is effortlessly connected to the expansive living room. This open-concept layout offers tall ceilings and large windows that fill the space with natural light. A centrally located fireplace in the great room adds style and warmth. The primary bedroom offers a walk-in closet, an en suite bathroom with a double vanity. Receive a closing cost credit with use of builder’s preferred lender, reach out for more information. Sales office hours are 10:00am – 5:30pm daily. Be a part of this wonderful community at East Park Village! Photos are representative of plan only and finishes may vary as built.
Model office: 113 Greencrest Street NE, Salem OR 97301
Dwelling Type: Residential
Subdivision: N/A
Year Built: 2026, County: US
Model office: 113 Greencrest Street NE, Salem OR 97301
Listing is courtesy of D. R. Horton, Inc Portland
Sign in to your account to continue