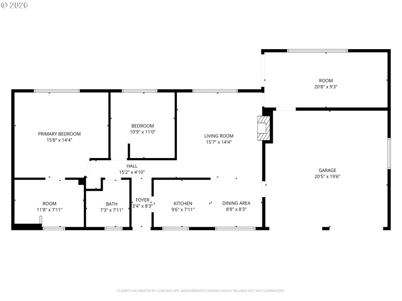
Fixer opportunity in an excellent neighborhood with strong upside potential. This 3-bedroom home currently has one operable bathroom, with an oversized space for a second full bathroom ready to be built out to create a primary suite. The third bedroom is located off the back of the garage (see floor plan for details). Features include a fireplace, an attached 2-car garage, and a large, level lot with a deck and fenced yard. Close to schools, parks, downtown Beaverton, Nike, and more. Home will not qualify for conventional financing; rehab loan or cash only.
Allen Blvd, south on Wilson Ave, west on 21st St
Dwelling Type: Residential
Subdivision: N/A
Year Built: 1965, County: US
Allen Blvd, south on Wilson Ave, west on 21st St
Listing is courtesy of Windermere Realty Trust
Sign in to your account to continue