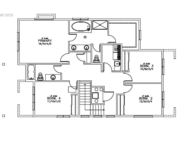
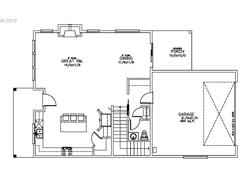
See sales rep about our promotion! Enjoy an open-concept main level featuring a spacious great room, dining area, and a well-appointed kitchen with a large island, ample cabinetry, and pantry storage. Upstairs, the private primary suite offers dual vanities, a soaking tub, separate shower, and walk-in closet, along with three additional bedrooms, a full bath, and convenient upstairs laundry. With 4 bedrooms, 2.5 baths, and a functional layout throughout, this home is designed for comfortable, modern living. This home is built to the Earth Advantage standard for performance and efficiency and features many green features as standard. HES score 9/10 https://us.greenbuildingregistry.com/green-homes/OR10243204 [Home Energy Score = 9. HES Report at https://rpt.greenbuildingregistry.com/hes/OR10243204]
SE Orion X SE Salal
Dwelling Type: Residential
Subdivision: N/A
Year Built: 2026, County: US
SE Orion X SE Salal
Listing is courtesy of Stone Bridge Realty, Inc
Sign in to your account to continue