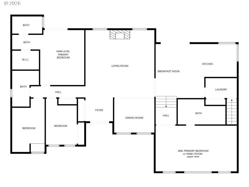
Rare In-Ground Pool Home nestled in the coveted Palisades neighborhood of Lake Oswego. This beautifully updated, 4-bedroom, 3-bath, home on tranquil Greentree Circle offers the perfect blend of an open floor plan with thoughtfully defined spaces. Double-door entry opens to a light-filled living room with vaulted ceilings, a wood-burning fireplace, large seating area and a view of the pool. The remodeled kitchen (2021) features ample U-shaped quartz counters with a waterfall edge, Wolf induction cooktop, built-in ovens, pantry, and built-in refrigerator. Unique to this property are two primary bedrooms, both with en-suite bathrooms. The main-level primary suite w/NEWLY REMODELED (2026) black and white tiled walk-in shower (was a tub), walk-in closet, private washer and dryer, and sliders with direct pool access. The second primary suite, with a remodeled (2023) bath, w/large walk-in shower, was originally a family room—offering desirable flexibility for life’s changes. Inside, you’ll also find on the main level, two additional bedrooms w/added closet space, a remodeled bathroom with eye-catching design, and a laundry room with a sink and ample storage. The interior flows seamlessly to the private, low-maintenance backyard, complete with the inviting in-ground pool with automatic cover, and spa - a space designed for entertaining and family fun. Other recent updates include: •New furnace and pool heater (2025) •New mini-split in upstairs primary (2024) •Remodeled primary and main bathrooms (2023) •New Kitchen with waterfall quartz counters, Wolf appliances, roof, and gutters (2021). Located near highly rated schools, a welcoming community, and easy access to Palisades New Seasons, parks, golf, local shops, and the Lake Oswego Recreation & Aquatic Center.
Southshore Bl to Greentree Road, turn left to Greentree Circle
Dwelling Type: Residential
Subdivision: PALISADES
Year Built: 1977, County: US
Southshore Bl to Greentree Road, turn left to Greentree Circle
Listing is courtesy of eXp Realty, LLC
Sign in to your account to continue