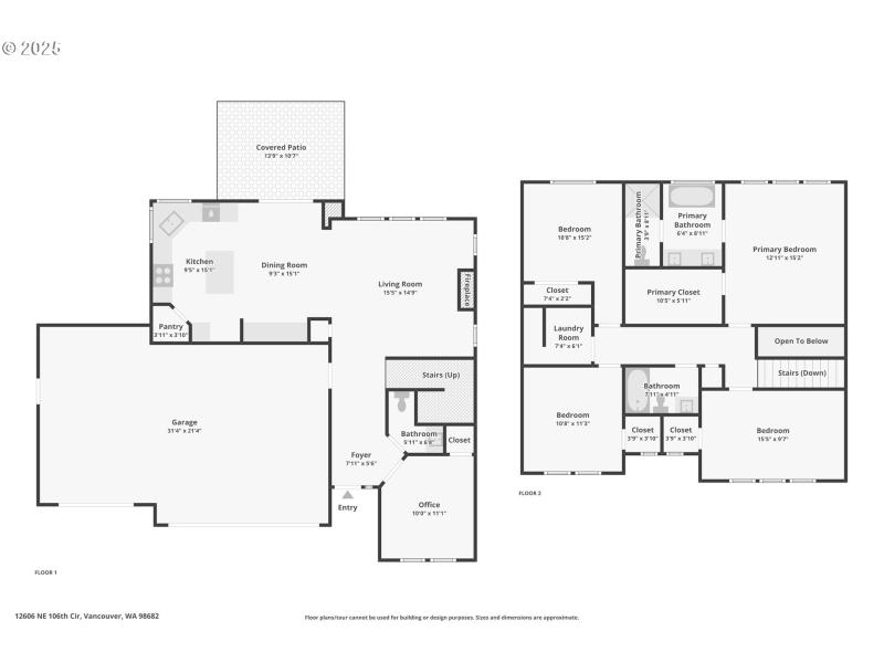
Custom – Not Builder Grade Home! Welcoming covered porch leads to an 8-ft front entry door with sidelite, opening into a wide entryway with high ceiling. Great room features a family room with tile surround gas fireplace, mantle, built-ins, clerestory windows, and ceiling light fan, flowing seamlessly into the gourmet kitchen. The kitchen offers stainless appliances including a built-in dishwasher and newer microwave, 5-burner gas range, complemented by quartz counters and tile backsplash, abundant cabinetry with space above for accessories, cornered walk-in pantry, and island/breakfast bar with generous storage, built-in desk area with quartz counter, pendant and recessed lighting, and high ceilings enhance the space. Dining area with slider access to the covered patio and backyard. Upstairs, the primary suite includes a ceiling fan, an spacious walk-in closet with organizer, and bath with dual quartz vanity with tile backsplash up to ceiling, free-standing soak tub with wainscoting surround, and separate shower tiled up to ceiling. Additional bedrooms include a main-level bedroom or den/office with full-lite entry door, walk-in closet, and under-stair storage, plus three additional upper-level bedrooms, two with walk-in closets and clerestory windows. The upper-level laundry room offers built-ins, clothes hang rod, plumbed for utility sink. A main-level powder room features a granite vanity, glass tile backsplash, and floating shelves, while the upper full bath includes a quartz vanity with tiled backsplash up to ceiling, and combo soak tub and shower. Interior highlights include New LVP flooring throughout, New tile flooring in upper baths, linen closet, utility closet, high main-level ceilings, freshly painted interior, and security system. Outside, enjoy a covered front porch, covered back patio with gas hookups, fully landscaped, sprinklers and drip system. 3-car garage with man door and built-ins. Mortgage savings may be available for buyers of this listing.
North NE 117th Ave -R NE 99th St-L NE 124th Ave-R NE 105th Way-L NE 127th Ave-L NE 106th Cir
Dwelling Type: Residential
Subdivision: N/A
Year Built: 2017, County: US
North NE 117th Ave -R NE 99th St-L NE 124th Ave-R NE 105th Way-L NE 127th Ave-L NE 106th Cir
Listing is courtesy of Redfin
Sign in to your account to continue