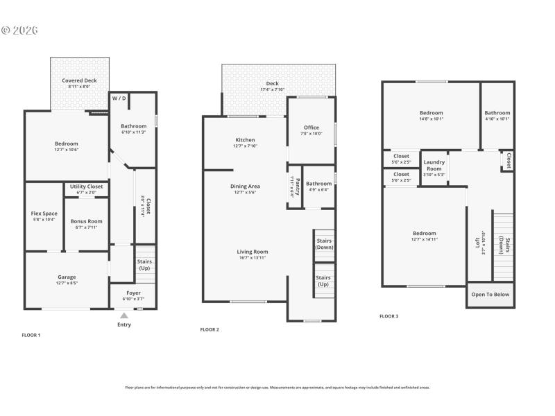
Corner-unit living with a thoughtfully designed layout, modern finishes, and flexible spaces across three levels. This home features an open-concept kitchen and living area, highlighted by quartz countertops in both the kitchen and bathrooms, stainless steel appliances, a spacious pantry, and durable luxury vinyl flooring throughout. The main level offers incredible versatility with a private bedroom, full in-suite bathroom, sliding glass door to outside deck, and separate living space—complete with its own washer and dryer—ideal for guests. Upstairs on the second level, the bright and open kitchen flows seamlessly into the main living area. Just off the kitchen, a dedicated office space overlooks beautiful, tree-lined views, creating a peaceful and inspiring workspace. Enjoy the outdoor living space provided by the spacious patio deck off the kitchen. The third floor features two generously sized, primary-style bedrooms along with an additional washer and dryer for convenience. Centrally located in SE Portland with easy freeway access, this home offers a rare combination of functionality, privacy, and modern living in a prime location. Come see it for yourself! [Home Energy Score = 4. HES Report at https://rpt.greenbuildingregistry.com/hes/OR10207098]
I-205, West on Powell, North on 87th, turn East on driveway, end unit on East side.
Dwelling Type: Residential
Subdivision: FOSTER - POWELL
Year Built: 2006, County: US
I-205, West on Powell, North on 87th, turn East on driveway, end unit on East side.
Listing is courtesy of Reger Homes, LLC
Sign in to your account to continue