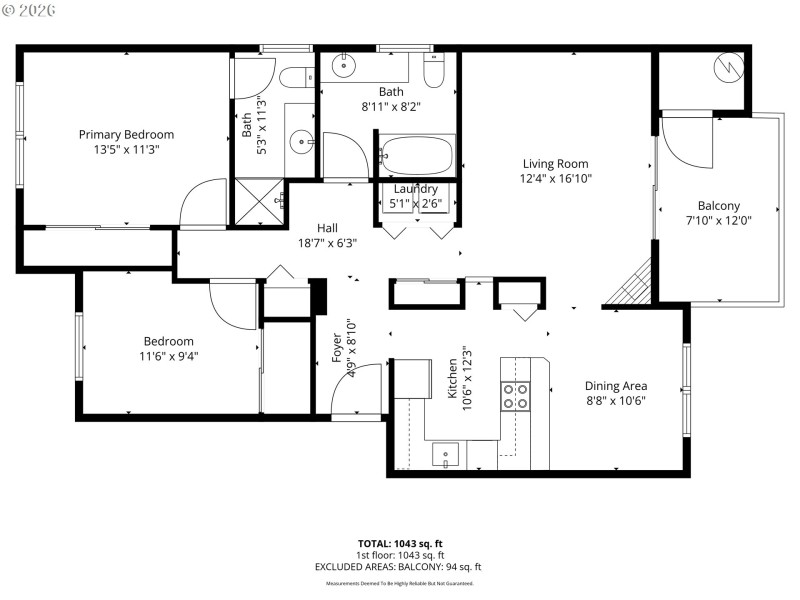
This light and bright upper end-unit is tucked two buildings back from Powell, offering added privacy while enjoying a west-facing living room that captures abundant winter sun. Mature trees provide welcome shade during the warmer months. The living room features carpeted floors, a cozy gas fireplace, and a wall-mounted air conditioner. The kitchen is well equipped with an elevated eating bar, built-in range, microwave, dishwasher, disposal, free-standing refrigerator, and a pantry for additional storage. The adjacent dining area includes a ceiling fan and a west-facing window that brings in natural light. The primary bedroom faces east and offers an oversized closet and an en suite bathroom with a step-in shower. Assigned covered parking (#94) is conveniently located nearby. A fenced dog area sits just across from the building (maximum of two pets allowed; dogs or cats only). The hallway includes a laundry closet with newer front-load washer and dryer, plus shelving neatly tucked behind bi-fold doors. A deeded storage unit—approximately 100 square feet—is located at the west end of the complex. The well-maintained HOA covers cable TV, water, sewer, and trash, and provides access to a recreation/party room, secure mailroom, workout room, swimming pool, and fenced dog area. The gated entry closes nightly at 6:00 p.m., and TriMet bus stops are conveniently located directly in front of the complex and across Powell Boulevard. Outdoor recreation is close at hand, with the Eastside Timbers Sports Complex less than a mile away and Powell Butte Nature Park just one mile to the west. Motivated seller.
Powell (South Side) between 174th & 182nd
Dwelling Type: Residential
Subdivision: Emerald Valley - Bldg W
Year Built: 2000, County: US
Powell (South Side) between 174th & 182nd
Listing is courtesy of John L. Scott Portland Central
Sign in to your account to continue