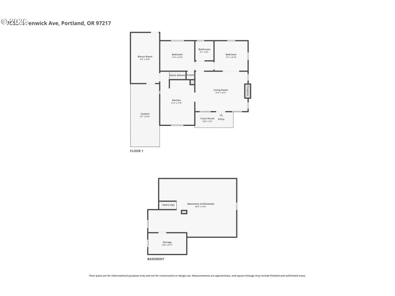
Same owner for the past 54 years. This cozy Portland bungalow exudes pride of ownership, offering bonus space and a large fenced yard. Light-filled living room with fireplace and built-ins creates a warm central gathering space. The kitchen offers generous cupboard storage and opens to a charming dining nook, with updated kitchen flooring and backsplash completed approximately 7 years ago. Two main-level bedrooms plus a versatile flex/bonus area provide options for an office, playroom, or hobby space, and hardwood floors are believed to be under the carpet. The unfinished basement includes laundry, a dedicated storage room, abundant additional storage, and an extra freezer that stays with the home. The main refrigerator (approximately 2 years old), stove (replaced 3 years ago), and washer and dryer (about 3 years old) are also included. Enjoy easy indoor-outdoor living with a back deck with remote controlled patio cover overlooking the spacious, fully fenced backyard— ideal for gardening, pets, or summer evenings and a storage shed for tools and gear. Carport parking plus ample basement storage make everyday living simple and functional in this classic Portland bungalow. Notable updates include extra wide gutters shutters (2025), main water line replaced (2024), and a brand new sewer line (2026). The converted garage has heating and cooling plumbed in for additional flexibility, and the home is located among several long-term homeowners, offering a welcoming neighborhood feel. All furniture is negotiable!
N Interstate Ave, W on N Bryant, N on Fenwick to 7052.
Dwelling Type: Residential
Subdivision: ARBOR LODGE
Year Built: 1923, County: US
N Interstate Ave, W on N Bryant, N on Fenwick to 7052.
Listing is courtesy of Opt
Sign in to your account to continue