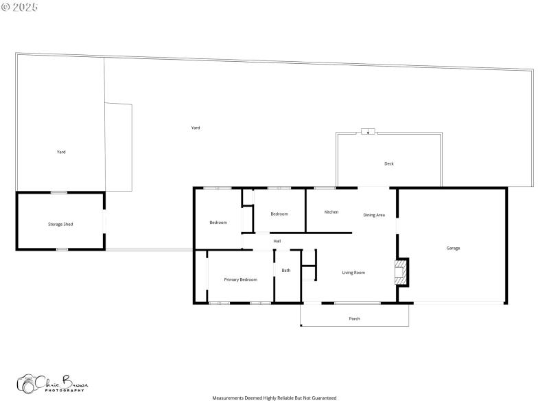
Move-in ready and recently price-adjusted, this thoughtfully refreshed one-level home is tucked away at the end of a cul-de-sac in outer SE Portland.Interior features include brand-new flooring, a fully updated kitchen (2025) with new cabinetry and updated appliances, and a remodeled bathroom with modern finishes. Energy-efficient heat pump for year-round comfort. Wood-burning fireplace with lined chimney, ready for insert.Light-filled layout offers comfortable living and functional flow.Exterior amenities include a 2+ car garage, RV parking, 10x16 Tuff Shed, and covered wood storage. Large, fully fenced backyard with new fencing provides space for outdoor living, gardening, or future expansion.Potential for ADU (buyer to perform due diligence) and existing chicken variance.Convenient location in Centennial School District with easy access to shopping, parks, and major routes.Recent price improvement—excellent opportunity for a move-in ready home with key updates already completed. [Home Energy Score = 9. HES Report at https://rpt.greenbuildingregistry.com/hes/OR10240106]
Turn south from Division onto 174th, road on the right
Dwelling Type: Residential
Subdivision: CENTENNIAL COMMUNITY ASSOC.
Year Built: 1980, County: US
Turn south from Division onto 174th, road on the right
Listing is courtesy of Berkshire Hathaway HomeServices NW Real Estate
Sign in to your account to continue