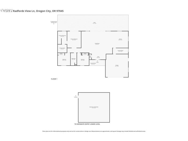
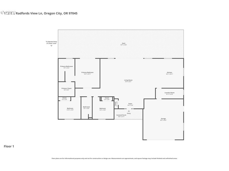
Come and experience this breathtaking view! This serene setting along with all the thoughtfully appointed amenities, makes this 1-level home custom-built home a must see. Gourmet kitchen offers top to bottom quality finishes throughout with hardwood floors, granite countertops, cook island, built-in double-ovens (convection), built-in microwave and glass top range. Great room concept allows for entertaining with direct access to the 72 foot and 16-foot view deck! The great room has hardwood floors, atrium style vaulted ceilings with plenty of natural lighting throughout the year. Primary bedroom has a sliding door to the view deck, walk-in shower, walk-in closet, double-sinks, jetted tub with view. There is access to the crawlspace cellar off of the deck. The crawlspace/cellar has many options for clean, dry and temperate storage. The mechanical features of this home are some of the more valuable features: high efficiency "High Performance Home" with geothermal heat exchange features, low-cost hot water system for economical comfort throughout the year.
Beavercreek to Henrici to Radfords View Lane
Dwelling Type: Residential
Subdivision: N/A
Year Built: 2012, County: US
Beavercreek to Henrici to Radfords View Lane
Listing is courtesy of Avid Real Estate Executives LLC
Sign in to your account to continue