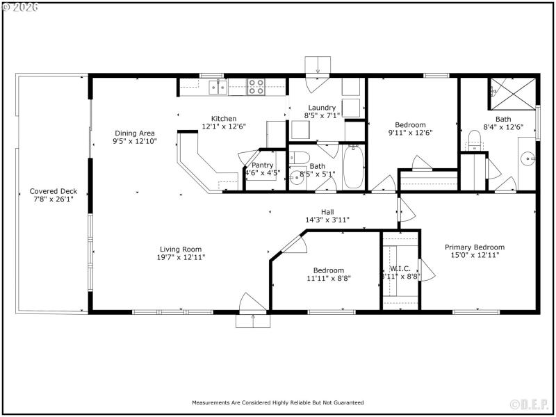
This has it all!! This newer 3 bed 2 bath home with a shop and covered deck looking out over the valley all situated on 5 landscaped acres! This upgraded home features Vaulted ceilings with decorative tray ceilings in the living room, large kitchen with Stainless steel appliances, pantry, and eating area. Primary bedroom with a walk in shower, vanity with a makeup space & walk in closet. Enjoy the large shop with oversized roll up doors & fireplace, new septic in 2022, along with a new water treatment system in 2022 as well!! This property is definitely worth touring as it has so much to offer!!
HWY 30 North, Use beaver falls Rd or go through town
Dwelling Type: Residential
Subdivision: N/A
Year Built: 2022, County: US
HWY 30 North, Use beaver falls Rd or go through town
Listing is courtesy of RE/MAX Powerpros
Sign in to your account to continue