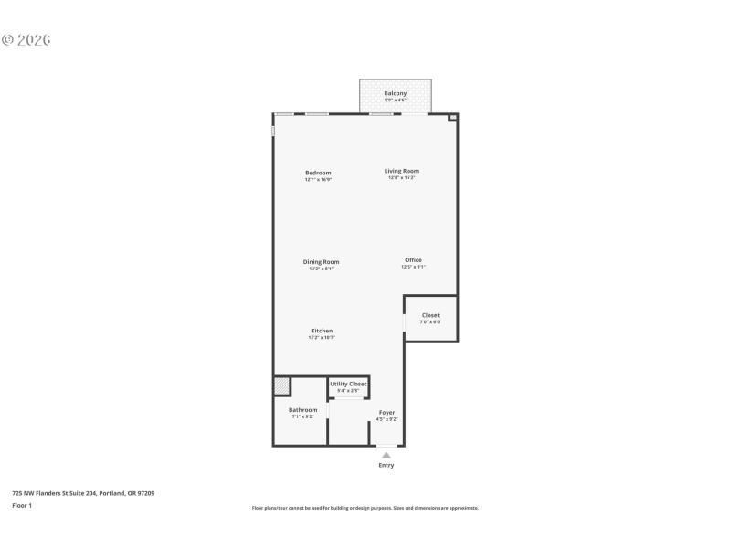
Set within the iconic Flanders Lofts, this vintage loft captures the essence of the Pearl District: timeless, creative, and effortlessly cool. Morning light filters through tall park-facing windows, catching the exposed timber beams and concrete details that give the space its unmistakable industrial soul. Step onto the private patio and you’re greeted by the greenery of the Park Blocks and the quiet rhythm of the neighborhood unfolding below.Inside, soaring ceilings and an open-concept layout create a sense of freedom and flexibility. Think refined live/work setup, a gallery-like living environment, or a welcoming place to gather friends for an evening of good food and conversation. The chef’s kitchen is made for hosting, while the spa-like bath with a deep Japanese soaking tub offers a moment of retreat at the end of the day.Living here means the best of Portland is always within reach, yet never intrusive. Coffee around the corner. A wine bar after work. First Thursday strolls through nearby galleries. World-class dining, boutiques, markets, and events just steps away. Walk downtown, bike across the city, hop on MAX, or pull into your deeded garage parking when needed. The city becomes an extension of your living room.This is urban living with intention—where sophistication replaces stress, and access replaces excess. A home that honors Portland’s industrial past while offering the flexibility and ease of modern city life. Whether you’re building something new, working creatively, or simply savoring the energy of the Pearl, this loft offers a rare balance of vibrancy and refuge, right where you want to be.
Park side on 8th and Flanders, just above park kitchen
Dwelling Type: Residential
Subdivision: N/A
Year Built: 1921, County: US
Park side on 8th and Flanders, just above park kitchen
Listing is courtesy of Paris Group Realty LLC
Sign in to your account to continue